10 logements sociaux et un commerce rue Castagnary
39-41, rue Castagnary , France
Le nouveau bâtiment s’aligne sur la rue Castagnary et se développe en L avec un retour contre l’immeuble voisin au nord. Sensiblement du même gabarit que l’immeuble existant, il instaure une relation visuelle avec les constructions qui lui font face. Son échelle intermédiaire assure la continuité urbaine et la densité du quartier.
L’immeuble est couvert d’une vêture en lamelles métalliques blanches qui répond à la couleur dominante du quartier. Son écriture est contemporaine et répond à la finesse et au souci du détail de certains immeubles du quartier. Le rythme des percements reprend celui des immeubles alentour et les grandes ouvertures verticales s’inspirent des fenêtres parisiennes.
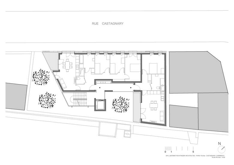
La limite sud est déterminée par le périmètre de sécurité, contrainte qui conditionne le parti d’implantation du volume dans son environnement. Le bâtiment se met à distance de la limite au sud-ouest, en créant un jardin qui est visible depuis la rue. La façade en biais participe à la création de cette percée visuelle qui relie la rue Castagnary, le coeur du terrain et le paysage lointain.
Ainsi, le projet amorce un front urbain discontinu, il répond à l’échelle du quartier tout en offrant des vues en profondeur sur des plantations depuis la rue.
La façade sur rue, ainsi que celle du RDC et des 3 premiers étages suit l'alignement du trottoir alors la façade s’incline à partir des 2 derniers niveaux. La hauteur du bâtiment correspond à la hauteur de ses vis-à-vis dans la rue Castagnary.
Un socle transparent marque la vitrine du commerce au RDC et l’entrée traversante de l’immeuble.
Le traitement de la façade est homogène sur l’ensemble, y compris la partie inclinée. Elle est constituée de fines lamelles métalliques verticales blanches et de panneaux coulissants devant les fenêtres. Ces panneaux sont composés des lamelles mobiles afin d’assurer la protection solaire. Les fenêtres soulignent la verticalité de la structure.
Les façades sur le jardin sont composées d’un revêtement métallique laqué blanc, calepiné de manière irrégulière. Les pignons affichent quant à eux le béton, matériau de construction. Le béton est apparent depuis la perspective de la rue de Vouillé et présente un calepinage semblable à celui des façades métalliques, bouchardé sur le béton.
L’écriture architecturale de la façade assure l’intégration de l’immeuble dans la rue tout en lui conférant une identité forte. Le jeu des panneaux mobiles et la variation de l’inclinaison des lamelles animent la façade. Les menuiseries en aluminium ont une teinte identique à celle des lamelles.
Des balcons suspendus rendent l’angle Est plus léger et offrent aux logements l'agrément d'un espace extérieur individuel. Chaque logement possède un balcon orienté au Sud, les fenêtres sur jardin étant équipées de stores extérieures. Des panneaux solaires sont installés sur la toiture. Ils sont légèrement inclinés pour assurer l’auto nettoyage.
L’accès aux étages se fait en traversant le corps principal de l’immeuble. Les boites aux lettres sont installées dans ce porche à l’air libre. Côté cour, l’ascenseur et un escalier à l’air libre amènent aux coursives d’accès aux logements. L’escalier en construction métallique est recouvert d'un filet en inox sur toute la hauteur vers le jardin.
Chaque coursive dessert deux appartements et est disposée en extérieur, assurant l'éclairage naturel des espaces communs et la ventilation des logements. Les coursives sont protégées par un filet inox offrant ainsi une vue dégagée sur le paysage.
Le bâtiment est agrémenté d’un jardin, accessible depuis la rue. Cet espace est planté avec des arbres de petit développement qui profiteront d’un ensoleillement généreux depuis le sud.
Le projet s’inscrit dans un processus de certification Cerqual type A. Il est conçu à basse consommation énergétique avec une isolation renforcée afin de respecter la norme « énergie primaire » de référence de 50kWh/m² SHON.
Concours 03 | 2015
Début études 09 | 2009
Début travaux 07 | 2016
Superficie 800 m2
- Architects
- Dietmar Feichtinger Architectes
- Any
- 2016
- Estat del projecte
- Construït
- Client
- RIVP
















