3 Villas Mitoyennes Minergie à Chailly
Rovéréaz 59A-B-C, Lausanne, Switzerland
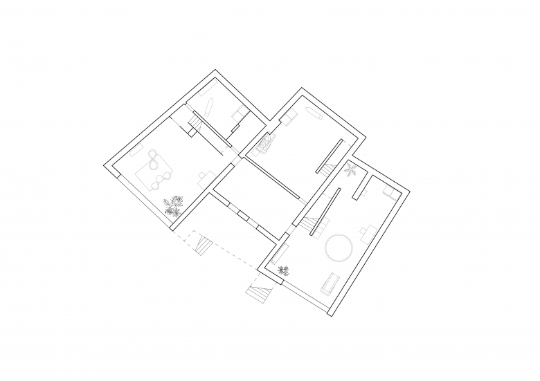
Un ensemble de 3 maisons mitoyennes remplace une villa des années 50 dans le quartier résidentiel dominant le pont de Chailly. Le projet exploite au maximum le potentiel de densification de la parcelle tout en prenant soin par sa forme et sa matérialité de s’insérer dans son contexte pavillonnaire et verdoyant. Des décalages en plan et en coupe réduisent l’échelle et renforcent la domesticité de l’ensemble. Ils créent des terrasses qui prolongent les pièces à vivres et multiplient les orientations notamment un dégagement vers l’ouest pour la maison du milieu.
La plastique du volume et la composition des façades intriguent, brouillant à dessin la lecture typologique pourtant traditionnelle de 3 maisons contigües. L’originalité typologique est ailleurs : le projet renonce à l’étage d’attique règlementaire et répartit la surface maximale constructible sur 2 niveaux plus généreux au profit d’une toiture terrasse panoramique pour chaque logement.
Les matériaux sont laissés bruts est leur nombre réduit au minimum : du béton apparent à l’intérieur, du bois à l’extérieur pour l’essentiel. L’ambiance et la richesse aussi bien intérieures qu’extérieures sont obtenues par l’assemblage, la mise en œuvre et le traitement de ces matériaux : un béton calepiné pour les murs, des dalles poncées révélant des agrégats, un clairevoie soigneusement dessiné en façade qui revisite le bardage vertical traditionnel. Ces choix simples et radicaux obéissent aussi à une cohérence énergétique et constructive : les dalles actives transmettent de manière optimale la chaleur, le dessin de la clairevoie a permis au charpentier de préfabriquer entièrement la façade en atelier et optimiser la pose sur le chantier.
- Architects
- PONT12 architectes sa
- Any
- 2020
- Estat del projecte
- Construït
- Client
- Privé
- Ingénieur civil
- EDMS SA
Projectes relacionats
Revista
-
Bâtiment de la semaine
The Three-Body Problem: Trapped in a Wave Sandwich
Eduard Kögel, Scenic Architecture Office | 13.04.2026 -
-





















