Über dem Durchschnitt
Köln, Germany
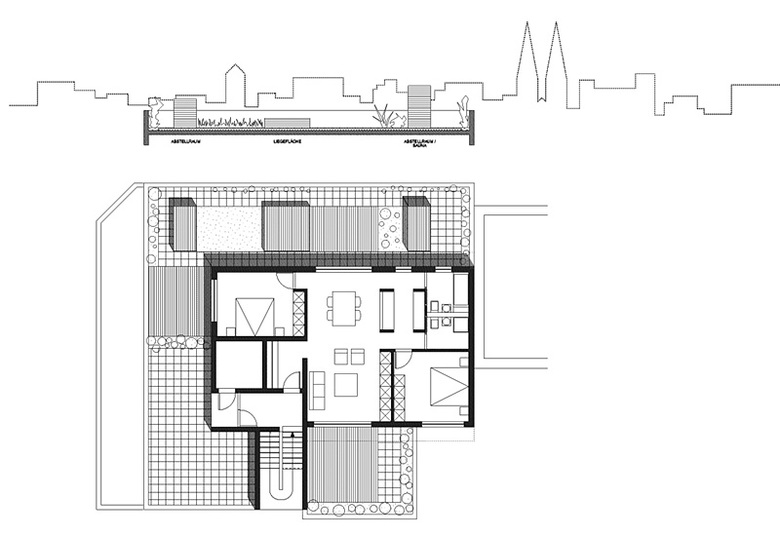
Das Gebäude aus den 70er Jahren liegt zentral am Barbarossaplatz. Im Zuge einer energetischen Sanierung des Mehrfamilienhaus wurde das Penthouse um- und ausgebaut. Es befindet sich im 6ten Stock über den Dächern von Köln. Das Loft ist mit seiner kompakten Größe von ca. 90 qm aber sehr geräumig. Durch die klare und offene Grundrissstruktur, sowie die integrierten und eigens angefertigten Einbauten, erhält die Dachgeschosswohnung diesen großräumigen Charakter. Umsäumt wird es von einer ebenfalls ca. 90 qm großen Dachterrasse. Durch die bodentiefen Fenster und Glastüren fällt der Blick auf die Sehenswürdigkeiten von Köln. Zum Beispiel kann der Dom durch die ausgefeilte Raumaufteilung von der Wohnzimmercouch, aus der hochwertig integrierten Küche, sowie aus dem Wannenbad heraus bestaunt werden. Der federführende Architekt Frank Lohner sagte zum Kölner Stadt Anzeiger - der beim Tag der Architektur sich an eigenes Bild an Ort und Stelle machte: „Das Penthouse ist eine Alternative zur klassischen Altbausanierung. Es gibt in Köln so viele Flachdächer, die man wunderbar nutzen könnte.“ Dem Bauherrn gefällt diese Lösung sehr und freut sich jeden Abend über den unverbauten Blick auf Köln. In Anlehnung an das Bauhaus wurden auch die Materialien gewählt - reduziert und hochwertig. Mit dem Anliegen an Qualität und Klarheit sind auch einige Großwohnungen im Gebäude saniert worden, neue Fenster und Türen wurden eingebaut und die Fassade mit einem Wärmedämmverbundsystem an die heutigen Standards angepasst.
- Any
- 2011
- Estat del projecte
- Construït












