Alnatura Arbeitswelt
Mahatma-Gandhi-Straße 7, Darmstadt, Germany
In Darmstadt ist mit der Alnatura Arbeitswelt ein architektonischer Meilenstein in puncto Nachhaltigkeit, Materialeffizienz, Offenheit und moderner Arbeitsformen entstanden. Zu den Besonderheiten des von haascookzemmrich STUDIO2050 konzipierten Gebäudes am Alnatura Campus, zählt der Einsatz einer innovativen Stampflehmfassade, die weltweit erstmals mit einer geothermischen Wandheizung belegt wurde. Außergewöhnlich ist auch die schallwirksame Holzlamellendecke, die das Atrium und die komplett offen gehaltenen Büroflächen überspannt.
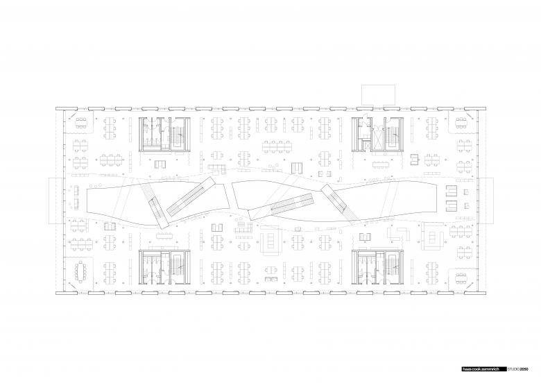
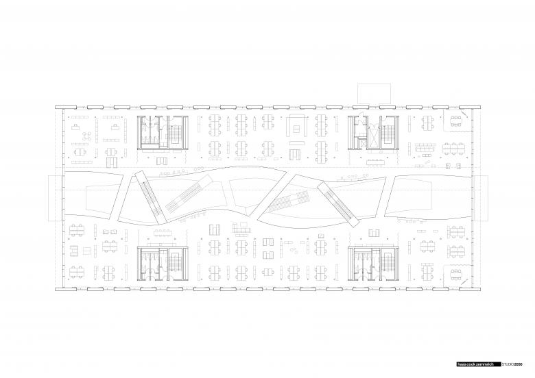
Das Gebäude auf dem Grundstück der ehemaligen Kelley-Barracks, bei dem kaum etwas an ein herkömmliches Bürohaus erinnert, bietet auf drei Etagen mit einer Fläche von ca. 10.000 Quadratmetern Platz für bis zu 500 Mitarbeiter. Architektonisch soll das Haus nicht beeindrucken, sondern einladen. Es ist offen für die Umgebung, für neue Einfälle, für Menschen. Eine Werkstatt für Ideen, die durch ihre Einfachheit besticht.
Offenheit als Maxime
Wer in das Atrium der neuen Alnatura Arbeitswelt tritt, fühlt sich beinahe wie unter freiem Himmel. Das lichtdurchflutete Holzdach und die transparenten Stirnfassaden lassen so viel Sonnenlicht hereinströmen, dass der gesamte Innenraum taghell erleuchtet wird. Ganz gleich, auf welcher Ebene man sich befindet, der Blick ist von allen Standpunkten spannend und abwechslungsreich. Treppen, Brücken und Stege schaffen Verbindungen und bereichern das räumliche Erleben. Die Dachschrägen umschließen das Atrium, ohne den Raum zu begrenzen.
Die Arbeitswelt verliert sich nicht in einzelnen Abteilungen, abgeschlossenen Räumen und unübersichtlichen Gängen: Es ist ein großer Raum, der sich vom Erdgeschoss bis unter das Dach, zwischen den Fassaden ohne störende Trennwände aufspannt, der den Mitarbeitern und dem Unternehmen eine unbegrenzte Vielfalt an Gestaltungsmöglichkeiten bietet und mit dem Dogma starrer Bürostrukturen bricht. Es existiert eine Vielfalt an Räumen, die eine lebendige und flexible Arbeitsatmosphäre ermöglichen. Mit akustisch wirksamen Vorhängen können Besprechungsbereiche bei Bedarf abgetrennt werden. Zudem befinden sich auf allen Ebenen offene Teeküchen, die von den interfunktionalen Teams als Besprechungsorte genutzt werden können. Der Übergang zwischen öffentlichem und internem Bereich ist fließend. So funktioniert das Erdgeschoss als Treffpunkt, der die unkomplizierte Begegnung von Besuchern und Mitarbeitern ermöglicht.
Ganzheitlich nachhaltiger Anspruch
Die Alnatura Arbeitswelt folgt den Grundsätzen einer ganzheitlichen, nachhaltigen Architektur, was sich unter anderem in der DGNB Zertifizierung in Platin ausdrückt. Es ist ein hochleistungsfähiges Haus mit einem geringen Energieverbrauch und optimiertem Innenkomfort, das ressourcenschonend unter dem Einsatz natürlicher und wiederverwendeter Materialien entstanden ist. Der Einsatz ökologisch unbedenklicher Baustoffe führt zu einer Reduktion der mit dem Bau verbundenen Umwelteinwirkungen und verbessert wesentlich die Ökobilanz eines Gebäudes. Mit der Vermeidung von umweltschädlichen Anteilen in Baustoffen können auch hohe Kosten bei der Entsorgung präventiv vermieden werden. Ebenso kann mit dem Einsatz von emissionsarmen Baustoffen das Risiko einer gesundheitlichen Beeinträchtigung der Nutzer verringert werden.
Innovative Stampflehmfassade
Zu den Besonderheiten des Gebäudes zählt eine Stampflehmwand, die in Zusammenarbeit mit Martin Rauch und Transsolar entstanden ist. Die einzelnen Stampflehmblöcke wurden an der Nord- und Südfassade zu 16 je 12 Meter hohen, selbsttragenden Wandscheiben geschichtet. Die Stampflehmfertigteile, die direkt neben der Baustelle vorgefertigt wurden, verfügen über eine 17 Zentimeter starke Kerndämmung aus recyceltem Schaumglasschotter. Zudem wurde in den Wänden Material aus dem Tunnelaushub des Bahnprojekts Stuttgart 21 wiederverwendet. Um der Oberflächenerosion von Stampflehm entgegenzuwirken, sind horizontale Erosionsbremsen aus Ton und Trasskalk in der Wand eingebracht.
Die graue Energie bei der Herstellung, Verarbeitung und einem möglichen Rückbau von Lehm ist praktisch null. Durch die Langlebigkeit des Materials, wie auch durch die hervorragende Luftfeuchteregulation und Wärmespeicherfähigkeit des Lehms, entsteht ein Bau von hoher Wertstabilität. Die Oberfläche bleibt frei von Algen- oder Moosbildung, der Reinigungs- oder Pflegeaufwand der Fassade entfällt.
Hoher Tageslichtanteil
Die Lage und die Ausrichtung des Gebäudes wurden behutsam nach mikroklimatischen Gesichtspunkten festgelegt. Um bestmögliche Tageslichtbedingungen im Inneren der Arbeitswelt zu bieten ist es mit seinen Längsseiten Nord/Süd orientiert. Damit wird sichergestellt, dass durch das Oberlichtband des Atriums reines Nordlicht ins Gebäude geleitet wird. Ungewollte solare Wärmegewinne werden so vermieden.
Auf der sonnenbeschienenen Südseite des Gebäudes befindet sich mit dem Teich ein natürlicher Klimapuffer, der das Mikroklima des Standorts im Sommer positiv beeinflusst. Die hohen Bestandskiefern auf der Südseite des Gebäudes liefern im Sommer die gewünschte Verschattung. Außerdem wird das Sonnenlicht über eine 480 Quadratmeter große Photovoltaik-Anlage auf dem Dach zur Energiegewinnung genutzt.
LowTech: Natürliche Belüftung und Kühlung
Das Gebäude wird ganzjährig natürlich belüftet und verzichtet vollständig auf ressourcenverbrauchende und wartungsintensive Klima- und Lüftungsgeräte. Hierfür nutzt die Arbeitswelt den westlich gelegenen Kiefernwald als Quelle für Frischluft, die über zwei Ansaugtürme am Waldrand in einen Erdkanal geleitet und von dort ins Gebäude geführt wird. Für den Antrieb des Luftstroms sorgt der Kamineffekt des Atriums, eine Thermik die sich unter dem Oberlichtband einstellt.
Da die Zuluft des Erdkanals auf natürliche Weise vorkonditioniert ist, ist der zusätzliche Heiz- und Kühlbedarf des Gebäudes sehr gering. Die Speichermasse der 69 cm dicken Lehmwände und der Betondecke sorgen für ein stabiles, ausgeglichenes Temperaturniveau. An heißen Sommertagen helfen die hohen Räume und die Verdunstungskühlung des Lehms, Wärmeinseln im Arbeitsbereich zu vermeiden.
Für die im Winter benötigte zusätzliche Wärme wurden in die Lehmwände des Gebäudes Heizschlangen eingestampft, die mit Warmwasser aus regenerativen Quellen wie den Geothermiesonden und aus der Abwärmerückgewinnung der Küchentechnik gespeist werden. Dieses Verfahren wurde bei der Alnatura Arbeitswelt weltweit zum ersten Mal bei einer Stampflehmwand angewandt.
Besondere Anforderungen an die Akustik
Für die besonderen akustischen Herausforderungen des offenen Gebäudes wurden unter anderem Absorberstreifen in die Betondecke einglegt. Die geschäumte Betonstruktur der in den Rohbau eingelegten Fertigteile sorgt für eine wirksame Brechung der Schallwellen und trägt wesentlich zur Bedämpfung der Arbeitswelt bei. Das Holzdach mit der schallwirksamen Holzlammellendecke ist ein weiterer wichtiger Baustein. Zusätzlich wirken die hölzerne Fensterrahmung und die Mikroperforierung der Kernwandverkleidung dämpfend auf den Raum. Auch die offenporige Struktur der Stampflehmwand trägt zu der guten Geräuschkulisse des Hauses bei.
„Die Alnatura Arbeitswelt gibt Antworten, wie man Gebäude heute planen und bauen kann: einfach und ressourcenneutral“, sagt Martin Haas, Gründer und Partner von haascookzemmrich STUDIO2050. „Es gibt den Werten und den offenen Strukturen des Unternehmens Alnatura eine architektonische Entsprechung, die Identität stiftet und Menschen verbindet.“
- Edificis d'oficines
- Guarderies + Llars d'infants
- Restaurants, Bars, Clubs
- Centres d'informació turística
- Jardins Públics + Privats
- Architects
- haascookzemmrich STUDIO2050
- Any
- 2019
- Estat del projecte
- Construït
- Client
- Campus 360 GmbH
- Equip
- Sinan Tiryaki, Elena Krämer, Philip Furtwängler, Lena Götze, Yohhei Kawasaki, Eduardo Martin Rodriquez, Eva Engele, Ioannis Siopidis
- Freiraumplanung
- Ramboll Studio Dreiseitl GmbH
- Tragwerksplanung
- Knippers Helbig GmbH
- Energieberater
- Transsolar Energietechnik GmbH
- Elektroplaner
- Ingenieurbüro Werner Schwarz GmbH
- TGA-Planer
- Henne & Walter GbR
- Bauphysik
- knp.bauphysik Ingenieurgesellschaft mbH
- Brandschutzgutachter
- TSB Ingenieurgesellschaft mbH
- Ausschreibung und Objektüberwachung
- BGG Grünzig Ingenieurgesellschaft mbH
- Innenarchitektur
- haascookzemmrich STUDIO2050 Freie Architekten PartG mbB
- Lehmbau
- Lehm Ton Erde Baukunst GmbH
- Campus
- 55.000 m²
- Alnatura Arbeitswelt
- 13.500 m²
- Firsthöhe
- 18,93 m
- Gebäudelänge
- 94,4 m
- Stampflehmelemente
- 384
- Regenwasserzisterne
- 1000 m³
- Geothermie
- 82 kW
- Photovoltaikanlage
- 90 kWp
- Fahrradstellplätze
- 155





















