Alterswohnen Espenhof
Zürich, Switzerland
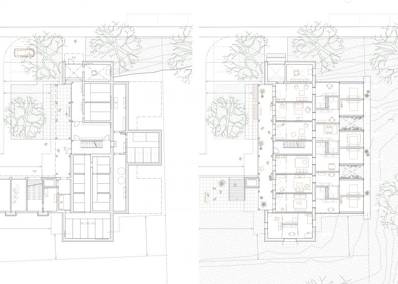
Anstelle eines Ersatzneubaus wird die bestehende Struktur anhand der bestehenden Quartierstruktur, der Qualifikation des Bestandesbaus, sowie architektonischer, ökologischer, ökonomischer und baurechtlicher Faktoren saniert und erweitert. Die neu konzipierten 28 Kleinwohnungen in der Liegenschaft an der Langgrütstrasse 89 werden über eine gemeinschaftsfördernde Eingangssituation und Laubengänge erschlossen. Sie verfügen über tiefe aber trotzdem gut belichtete Wohnräume, welche sich aus dem Bestandesbau in den Anbau entwickeln und unterschiedliche Privatsphären aufspannen. Die in einfachen aber robusten Materialien ausgeführten Wohnungen erzeugen Weiten, bieten spannende Durchsichten, grosszügige Wandflächen und eine gute Möblierbarkeit. Die bedarfsorientierte Ausstattung ergänzt die präzis geschnittenen Wohnflächen zu spezifischen, altersgerechten Wohnungen.
Städtebau
Entlang der Langgrütstrasse reihen sich rhythmisch vier Zeilenbauten mit identischer Länge auf. Die nach Süden ausgerichteten Bauten bieten Durchsichten in Richtung Uetliberg. Die Repetition ihrer schmalen, stehenden Stirnfassaden mit Giebeln wirken typisch und bildgebend. Sie bestimmen zusammen mit den restlichen genossenschaftlich wirkenden, zeilenartigen und mit Steildächern ausgestattete Bauten der Umgebung eine starke Quartierstruktur. Die letzten beiden letzten Zeilen teilen eine Einfahrt und einen leicht tieferliegenden Erschliessungshof. Die beiden Gebäude akzentuieren damit den Typus alternierender Erschliessungs- und Grünräumen zwischen Nord-Süd ausgerichteten Zeilenbauten. Der naturnahe Aussenraum zwischen der Langgrütstrasse 89 und dem Espenhof Süd folgt dieser Logik. Das Muster lässt sich entlang der Langgrütstrasse mehrfach beobachten.
Hofanlage und direkter Nachbar
Die zwischen den Gebäuden aufgespannten Garagen drängen das natürliche Terrain zurück und spannen einen Hof auf. Die Anlage wirkt harmonisch, stadtstrukturell logisch, funktionell tauglich und gut frequentiert. Der Hof ist als beidseitige Geste lesbar und schöpft aus der gegenseitigen Präsents der Wohnhäuser eine hohe aussenräumliche Qualität. Einen Eingriff in diese Aussenraumstruktur scheint nur beidseitig koordiniert möglich.
Qualifikation Bestand
Der bestehende Bau an der Langgrütstrasse ist keine ausserordentliche Schönheit. Jedoch stehlt er sich akkurat in das städtebauliche Muster, weisst eine effiziente Erschliessungsform auf, besitzt eine typologisch logisch aufgebaute Schottenstruktur und überzeugt durch seine robuste einfache Bauweise (Baumeistertragwerk). Die Tragstruktur besteht dekadentypisch aus gemauerten Wänden und dünnen Betonplatten. Der Installationsgrad ist äusserst gering. Baurechtlich übertritt der Bestand geltendes Recht in Gebäudelänge, Grenzabständen und Vollgeschosszahl.
Konzept
Das vorliegende Projekt sieht keinen Ersatzneubau vor sondern schlägt eine Sanierung und Anbau der Liegenschaft an der Langgrütstrasse 89 vor. Der Bau weist stadtstrukturell hohe Qualitäten auf. Die Qualität des bestehenden Baus ist robust und ermöglicht eine weitere Nutzung. Aus baurechtlichen Gründen müsste ein Ersatzneubau in gekürzter Länge oder aufgrund des Terrains als gestaffeltes Gebäude mit seinen Konsequenzen erstellt werden. Den Bestand weiter zu entwickeln ist neben der städtebaulichen Argumentation und der Qualifikation des Bestands aus technischen, ökonomischen, ökologischen und architektonischen Gründen sinnvoll und plausibel.
Technische Obsoleszenz
Die bestehende Struktur ist nutzbar. Einzelne Elemente werden altersbedingt ersetzt, Installationen werden rückgebaut. Die Primärtragwerk und die Dachstruktur bilden das Rückgrat des Projekts. Sollten einzelne Bauteile akustische Werte nicht einhalten können, können diese mit geringem Aufwand (Vorsatzschalen, Trockenböden) ertüchtigt werden. Die Arbeiten am Espenhof Süd zeigen exemplarisch, dass solche Strukturen nachhaltig weiter genutzt werden können.
Ökonomie/Rendite
Das Ziel ist einen besonders günstigen Wohnbau zu erstellen. Der Projektvorschlag beinhaltet geschätzt 60% wiederverwendete Primärstruktur des Bestands. Dies schlägt sich dank ausbleibendem Abbruch, Aushub, Transporten und Materialbeschaffung deutlich auf den Preis nieder. Die einfachen Sanierungsarbeiten an dem Bestand liegen deutlich unter dem Kubikmeterpreis eines Neubaus.
Ökologie
Den bestehenden Bau mit einem ähnlichen Ersatzneubau zu ersetzen ist ökologisch nicht sinnvoll. Die SAW setzt sich mit der Gesamtüberbauung Espenhof hohe ökologische Ziele. Der Projektvorschlag begrüsst diese Ziele und fördert diese dank einer massgebenden Reduktion an grauer Energie, Senkung notwendiger Ressourcen, Reduktion von CO2 sowie einer Verlängerung der Lebensdauer primärer Bauteile.
Architektur
Der vorgefundene Bau bietet aufgrund seiner robusten, seriellen und einfachen Struktur beste Voraussetzungen mittels eines Anbaus einfache, günstige aber qualitativ hohe Kleinwohnungen zu entwickeln. Die typisierte Erscheinung des Bestands ergänzt und überlagert mit einem präzisen, unaufgeregten Anbau erzeugt eine grundkonzeptionelle Erscheinung, bringt das Quartier mit dem Espenhof zusammen und verbindet die bestehende Stadtstruktur mit einer höheren Ausnutzung.
Erscheinung des Projekts
Die städtebaulich gut strukturierte, logische und klar lesbare Anlage wird durch einen Anbau auf der Ostseite des Bestandesgebäudes konserviert. An der Westfassade zum Hof wird eine neue grosszügige Laubengangerschliessung errichtet. Die beiden Anbauten durchwirken dank ihrer Primärgeometrie, ihres konstruktiven Ausdrucks und ihrer Materialisierung den Bestand. Die Collage aus Elementen lässt den Bestand ablesbar transformiert erscheinen und schafft in Ihrer Komposition eine auf Diversität basierende Harmonie, welche das neue Ganze als mehr den die Summe seiner Teile wirken lässt.
Stirnseitig markiert ein grosses, schützend zum Trottoir vorragendes Dach den neuen Hauptzugang. Durch das Zurückrücken des Anbaus entlang der Langgrütstrasse bleibt die stehende Gibelfassade präsent. Der Rücksprung akzentuiert eine achtungsvolle Negativecke gegenüber dem Espenhof Süd und Nord.
Der Hof bleibt Ort für Zufahrt und Ankunft. Das rege Treiben im Hof wirkt attraktiv für Alterswohnungen. Eine neue grosse Liftanlage stellt sich an die Laube und den Hof. Die Parkplätze werden begrünt. Die nicht mehr als Garagen genutzten Räume werden zu Velokellern, Containerräumen, Kleinwerkstätten oder zumietbaren Hobbyräumen umgenutzt. Eine Garage wird mit einer breiten Treppe zur Erschliessung des oberen Niveaus, bzw. des Quartiers genutzt.
Gebäudeerschliessung
Der stirnseitige Zugang wird im Sinn einer geringen Eingriffstiefe übernommen und umgestaltet. Die bestehenden Stufen vor dem Gebäude werden zugunsten einer unvermittelter und vereinfachten Erschliessung in das Gebäudeinnere verlegt. Durch die überhohe Zugangstüre fällt Licht in die durch entfernte Decken hohen und willkommen heissenden Räume. Die angelagerte doppelgeschossige Wäscheannahme mit Briefkästen bieten einen räumlich attraktiven Begegnungsort.
Entlang und mit Bezug zum Hofraum führt der als Windfang ausformulierte Korridor zum einer mit Bänken ausgestatteten, voll möblier- und nutzbaren Lobby. Das Treppenhaus bietet einen direkten Aussenzugang in den Hof und bringt über das Obergeschoss zusätzliches Licht in die Lobby. Das grosszügige natürlich belichtete Treppenhaus verbindet alle Geschosse miteinander.
Laubengang
Die neue, breite Laubengangerschliessung wird zum Treffpunkt und dient den Wohnungen als vorgelagerte, offene Eingangshalle. Vorgehängte, perforierte Brüstungselemente aus Beton fassen den Raum und lassen gleichzeitig gefiltert Licht aus Westen einfallen. Markisen an den Deckenuntersichten bieten in warmen Monaten kühlenden und verspielten Schatten. Eine minimale oder spontane Möblierung der Laube ist möglich. Die Öffnungen zum Laubengang sind mit verglasten Türen und Fenstern ausgestattet. Vor den Fenstern bieten aussenliegende Fensterbänke Sitzmöglichkeiten. An den Enden der Laubengänge liegen prominent grosszügig geschnittene Waschküchen. Sie bieten neben der funktionellen Aufgabenerfüllung durch ihre Lage, Ausrichtung und Aussicht attraktive Treffpunkte.
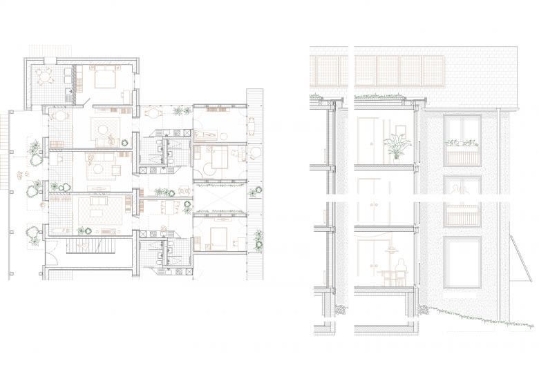
Wohnraumentwicklung
Die Struktur des bestehenden Gebäudes bildet den Ausgangspunkt für die weitere Wohnraumentwicklung. Jeweils eine entkernte Schotte ist Ausgangsraum einer sich in die Tiefe entwickelnden Wohnung. Kammerartig lagern sich ostseitig Räume an den Bestand an. Die Wohnungen entwickeln sich vom Bestand über eine Wohnküche bis zu den Schlafzimmern. Diagonale Durchsichten und Lichteinfälle begleiten diese Entwicklung in die Tiefe.
Wohnungsarchitektur
Zwischen Laubengang und Wohnraum akzentuiert ein Belagswechsel und eine raumüberspannende Vorhangstange einen Zutritts- und Kommunikationsbereich. Der Grad der Abtrennung der Fläche kann flexibel gesteuert werden und dient so entweder als Erweiterung der Laube in den Wohnraum, als privater Aussenraum, als Garderobe zwischen Laube und Wohnraum oder als erweiterter Wohnraum.
Der zentrale Wohnraum wird primär über die Laube belichtet und erhält sekundär Licht aus dem Anbau. Die bestehenden Fenster werden als Übergänge vom Bestand in den Anbau ausformuliert. Die Dicke aufgedoppelte Wand erhält ein tiefes Futter. In das Futter integrierte Doppeltüren erlauben ein abtrennen des Wohnraums zum Anbau.
Der Bereich der Bäder/Wohnküchen ist der eigentlich installierte Bereich der Wohnungen. Jeweils zwei Küchen und Bäder liegen nahe aneinander und bieten so eine effiziente Versorgung der Wohnungen. Die Raumgrössen und Ausstattung ist nach SIA500 nutz- oder umbaubar.
Die Schlafzimmer reihen sich entlang der Ostfassade auf. Alternierend werden sie durch Höfe unterbrochen. Die Höfe lassen Licht in die Küchen einfallen und eröffnen den Ausblick in Richtung Espenhof Süd und der aufgehenden Sonne. Den grosszügigen Schlafzimmern vorgelagert liegt eine filigran ausgeführte Balkonschicht. Sie bietet als Ergänzung zur Laube private Aussenräume und Rückbezüge in die Wohnräume. Die geschlossenen Aussenwände sind mit Rankgerüsten ergänzt.
Verfahren Selektiver Projektwettbewerb 2020, 2. Rang
KUMMER/SCHIESS Architekten GmbH
Meili Partner GmbH
Büro Thomas Boyle + Partner AG
- Architects
- KUMMER/SCHIESS Architekten GmbH
- Estat del projecte
- Disseny
- Client
- SAW Stiftung Alterswohnungen der Stadt Zürich











