Amthaus in Ottensheim
Marktplatz 7, Ottensheim, Austria
Diskursiv engagiert – Die Identifikation der BewohnerInnen der malerischen Gemeinde Ottensheim an der Donau, ältester Markt des Mühlviertels, mit ihrem neuen Amthaus ist groß, denn es ist mit vielen von ihnen gemeinsam entstanden. Eigentlich war das nicht so geplant, aber dann passierte es eben, und am Ende kam noch etwas viel Stärkeres dabei heraus. Dafür gab es dann auch 2010 den Österreichischen Bauherrenpreis und den Aluminium Architekturpreis.
"Ich glaube zu manchen Zeitpunkten waren die Architekten optimistischer als ich."
Ulrike Böker, Bürgermeisterin
Uns als Architekten sind gesellschaftliche Bedürfnisse erst einmal wichtiger als formale Fragen und die Ottensheimer sind schon auch besonders diskursiv und engagiert, schon in den Achtziger Jahren entstanden in der Gemeinde die ersten Mitbestimmungsprojekte.
Transparenz transformiert – Im Anbetracht dessen befand dann auch eine Fachjury 2005 einstimmig, dass der Wettbewerbsentwurf eines offenen „Forum am Platz“, übrigens einer der ersten Projekte des damals erst frisch gegründeten Architekturbüros Sue, dem Ansinnen der Gemeinde nach transparenter Gemeindepolitik baulich entsprechen würde. Weit gefehlt. Letztlich stieß der gläserne, singulär stehende Baukörper aus verschiedensten Gründen auf den Widerstand vieler BürgerInnen.
Die Idee des offenen Amthauses – und das ist das Besondere an diesem Projekt – wurde trotzdem umgesetzt, nur transformiert eben und war letzten Endes in der Gemeindegeschichte noch ein Stück verwurzelter.
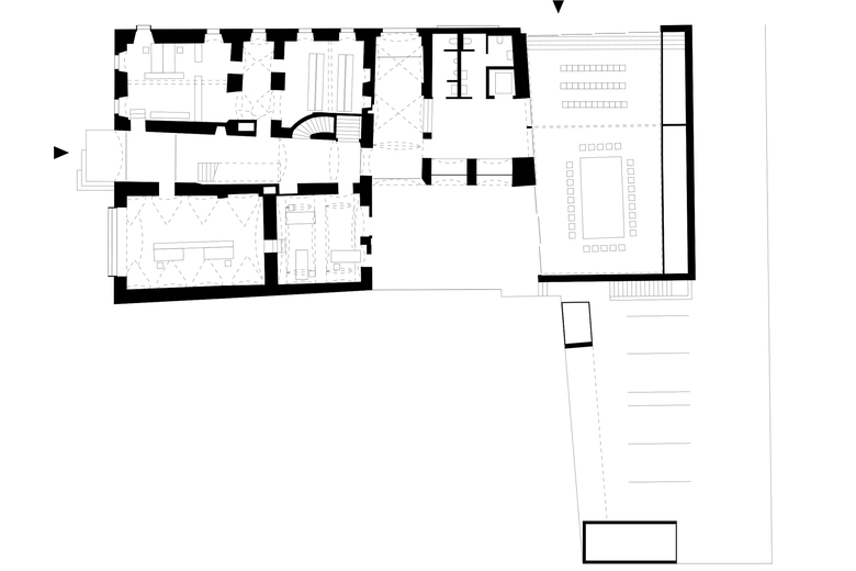
Identität = Arbeit – Man entschied sich für die Revitalisierung des baufälligen und denkmalgeschützen Gusenleitnerhaus im Ortskern. Welche Schätze kamen unerwartet zu Tage! Ein barockes Kreuzgratgewölbe, alte Holzdecken, sogar eine frühhistorische Deckenmalerei. Sensibel restaurierte man, plante Neues hinzu, verwendete verwertbare Bauteile wieder, wenn auch auch andere Stelle. Identität schaffen ist Arbeit.
"Das Haus gab sich in seiner Substanz divenhaft schwierig. Historie und Moderne fallen sich lachend in die Arme und das ästhetische und funktionale Endergebnis ist schlicht erstaunlich." Robert Wacha, Bundesdenkmalamt
Verschmelzung von Innen und Außen – Der Saal, der im Altbau und dann nach dem Wettbewerb auch am Marktplatz keinen Platz fand, wurde in einem neuen Erweiterungsbau untergebracht, der bei geöffneter Fassade Innen und Außen, wie man es von historischen südeuropäischen Bautypen kennt, verschmelzen lässt: Er wird zum gedeckten öffentlichen Raum zur Linzerstraße vorne und zum Arkadenhof hinten.
Während die GemeindebeamtInnen im alten Teil ungestört ihrer Arbeit nachgehen, wird hier ausgestellt, geheiratet, Musik gespielt, diskutiert und abgestimmt, alles, was die Ottensheimer eben so gerne gemeinsam tun. Die Geschichte des Hauses schreiben sie nun selber fort.
- Architects
- Franz&Sue
- Any
- 2010
- Estat del projecte
- Construït
- Client
- Verein zur Förderung der Infrastruktur der Marktgemeinde Ottensheim
- Statik
- Praher - Schuster ZT GmbH
- Bauphysik
- Dr. Pfeiler GmbH













