Apartment Vallvidrera
Barcelona, Spain
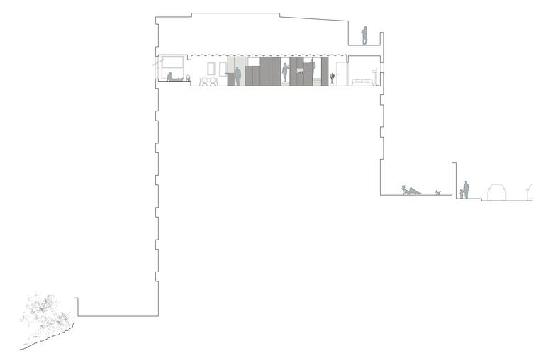
Refurbishment of a long narrow apartment in Vallvidrera's hill. In order to keep the eye on the panoramic view of Barcelona from any point in the apartment, all the existing walls are removed and the new furniture is placed along the corridor creating new stepped spaces.
- Architects
- sandy brunner Architecture
- Any
- 2006
- Estat del projecte
- Construït
- Client
- private
- Equip
- in collaboration with Bárbara Noguerol Diez + Estanislau Puig Durall Arquitectos














