ATLANTIC Hotel
Engelstraße 39, Münster, Germany
Die Kongressstadt Münster hat einen stark zunehmenden Bedarf an Hotelzimmern, hinkte im Übernachtungsangebot hinterher und musste dringend Kapazitäten ausbauen.
Übergeordnetes städtebauliches Ziel war die Aufwertung des Bahnhofsviertels. Die berühmte Münsteraner Promenade zieht sich als grüner Ring um die Innenstadt. Auf ihr kann man ohne Unterbrechung rund um die Altstadt flanieren. Das Hotel liegt durch den vorgelagerten und neu belebten Platz an diesem wichtigen grünen Band schafft eine Verbindung zwischen Bahnhof und Altstadt. Die zentrale Lage des neuen Hotels in unmittelbarer Nähe zur Promenade und zur Altstadt ist optimal, bedeutet aber auch einen großen Eingriff in das Stadtbild. Dieses Zusammenspiel, bei dem sich die Fassade des Atlantic Hotels in dem gläsernen Parkhaus spiegelt, und dem kleinen öffentlichen Platz, der sich zur Promenade öffnet, funktioniert sehr gut. Egal von welcher Richtung man sich dem Hotel nähert, die Adresse hat immens an Qualität gewonnen und wird zur Verlängerung der Innenstadt.
Herausforderung war es, ein innerstädtisches Gebäude mit hohem architektonischen Anspruch zu bauen, das sich harmonisch in die städtebauliche Lage einpasst. Zusätzlich spielte das Leitmotiv der privaten Hotelkette eine wichtige Rolle: Die Architektur sollte eine persönliche Note als Abgrenzung zu den Standardangeboten der großen Hotelketten widerspiegeln.
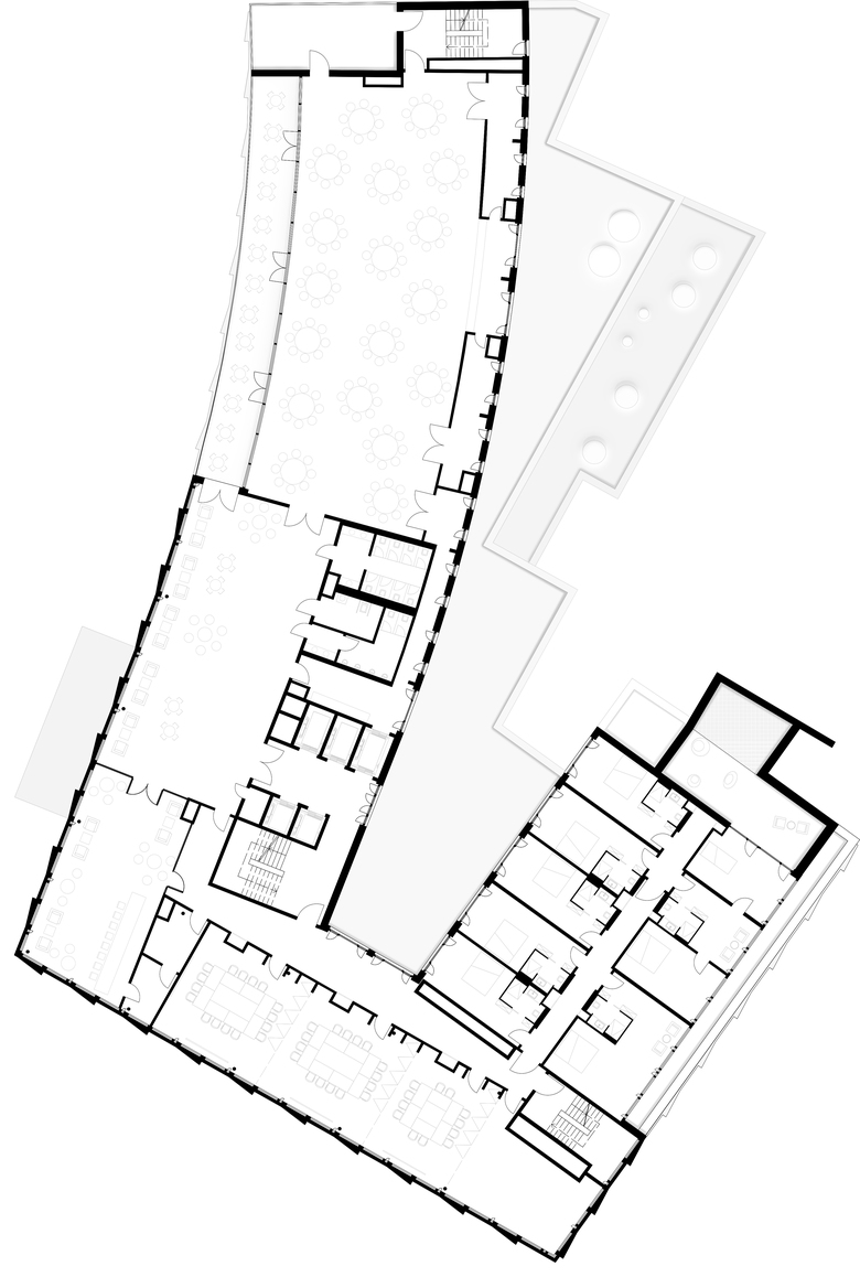
Das alte Gebäude auf der Engelstraße/Ecke Herwarthstraße wurde abgerissen und es entstand ein neues Vier-Sterne ATLANTIC Hotel mit 224 Zimmern Ballsaal, Restaurant, Konferenzbereichen, Spa- und Wellness-Bereich – verteilt auf sieben Geschosse sowie einer Tiefgarage. Ein modernes Hotel mit einer hellen, geschwungenen Fassade in Anlehnung an den Verlauf des vorgelagerten Platzes, rundum bodentiefen Fenster, einer Sky-Bar, einem 380 m² großen gläsernen Veranstaltungsraum im sechsten Obergeschoss und einer Dachterrasse mit einem fantastischen Ausblick über die Altstadt hinaus. Weitere Veranstaltungsräume befinden sich ebenfalls auf der Etage und im Erdgeschoss des Hotels.
Optisches Highlight ist die charakteristische Fassade, deren Aussehen sich aus der schuppenartigen Anordnung der Zimmer ergibt. Bei dieser geschwungenen Fassade entsteht durch die spielerische Anordnung der Fensterelementen ein Spiel mit räumlicher Tiefe, die das Auge fasziniert und fesselt. Die spielerische Anordnung von vorgefertigten Fensterelementen unterliegt einer festen Regel: Das erste Fenster hat einen Rahmen, das zweite nicht und das dritte Element ist um 180 Grad gedreht.
Ausgenommen sind Dach- und Erdgeschoss: Im Dachgeschoss wurde mit der kubischen Dachterrasse ein Fenster zur Stadt geschaffen, von dem aus man einen weitläufigen Blick über die ganze Münsteraner Stadtsilhouette hat.
Im Erdgeschoss wurde in der Fassade mit den bodentiefen Fenstern mit der Dynamik von Offen- und Geschlossenheit gespielt. Perspektiven und Blickwinkel variieren je nach Standpunkt und sind stets lebendig. Dazu wurden die Fenster im Erdgeschoss bis zum Gehweg heruntergezogen, der Übergang zwischen Drinnen und Draußen verschwimmt.
Das neue Atlantic verleiht Münster einen Hauch von Großstadt. Je näher man dem Hotel kommt, umso mehr kann man hineinsehen, umso willkommener wirkt es – egal von welcher Seite man sich nähert. Mit der facettenreichen, wandelbaren Fassadengestaltung wurde ein neuer architektonischer Hingucker und mit den öffentlichen Bereichen des Hotels ein Raum für die Bürger von Münster geschaffen. Das Hotel versteht sich nicht nur als privates Gästehaus, sondern mit öffentlichem Café, der Sky Bar und Co Working Spaces auch als Wohnzimmer der Münsteraner und als Anlaufstelle nach einem Spaziergang auf der berühmten Münsteraner Promenade.
Der Mehrwert gilt vor allem Stadt und direkten Anwohnern. Die Gegend rund um den Bahnhof ist sozial durchwachsen. An dieser städtebaulich markanten Stelle wurden mit dem Hotel im gehobenen Segment ein Stück hochwertige Architektur geschaffen und das Viertel immens aufgewertet. Der Dreiklang von gläsernem Parkhaus, der ehem. Landwirtschaftskammer und dem Hotel formulieren einen öffentlichen Park aus, der die berühmte Promenade verlängert. Hier befinden sich Kunstobjekte der Skulptura, man trifft sich auf einem Bouleplatz. Das Hotel folgt den städtebaulichen Linien, indem die Fassade die Kurvierung aufnimmt und mit der Dynamik der Straßenführung spielt.
Schon im Planungsprozess wurden alle Beteiligten mit ins Boot geholt: Nicht nur mit dem designierten Hoteldirektor des neuen Hotels und den Investoren wurde in enger Abstimmung geplant, sondern aufgrund der sehr zentralen Lage in eng verdichtetem Gebiet war es sehr wichtig sich bereits im ganz frühen Planungsstadium mit dem Stadtplanungsamt und insbesondere auch mit den Anwohnern abzustimmen. In mehreren Workshops wurden die Anwohner der kleinteiligeren Nachbarbebauung von dem Konzept und der dadurch erfolgenden Aufwertung des Viertels überzeugt.
- Architects
- KRESINGS
- Any
- 2021
- Estat del projecte
- Construït
- Team
- Kilian Kresing (Projektpartner), Rainer Maria Kresing (Projektpartner), Thomas Vöge (Projektleiter), Timm Schlarmann, Natalie Akulenko, Steven Gorgon, Natalie Reufer-Wülfing, Quang Dao Le
- Baufirma
- Zech Bau
- Tragwerksplanung und Bauphysik
- Statik Concretec Ingenieure, Bremen
- HSLE
- Beratende Ingenieure Merker, Sendenhorst
- Brandschutz
- BKK Sachverständige Brandschutz, Warendorf
- Innenarchitektur
- Olufemi Innenarchitekten, München
- Innenausbau
- Hotelzimmer Innenarchitektur, Ascheberg
- Fassadenplanung
- Infacon Fassadenplaner, Köln
- Verkehrsplanung
- NTS, Münster
















