Baslerstrasse
Bottmingen, Switzerland
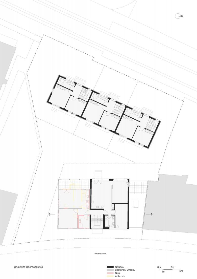
An der Baslerstrasse, im historischen Dorfkern von Bottmingen, entsteht ein familienfreundliches Wohnensemble. Zwischen dem von einem Lindenbaum geprägten Innenhof und der Strasse steht das denkmalgeschützte, komplett sanierte Bauernhaus mit 7 Wohnungen. Das alte Haus wurde statisch verstärkt. Alle Gebäudeelemente wurden sensibel renoviert. Die alte Scheune wurde durch einen Neubau mit Holzfassade volumetrisch ersetzt. Im Innenhof befindet sich ein Reihenhaus mit 3 Einfamilienhäusern. Das Hofgebäude wurde mit vorfabrizierten Holzelementen gebaut. Die klassische und ortsübliche Gebäudeform deutet nur mit dem Titanzinkdach darauf hin, dass es sich um einen Neubau handelt. Hinterhaus und Vorderhaus bilden ein harmonisches Ensemble, welches den historischen Dorfkern städtebaulich stärkt.
- Architects
- ARCHITEKTUR Staehelin, Gisin + Partner AG
- Any
- 2022
- Estat del projecte
- Construït





















