Belétage
Berlin, Germany
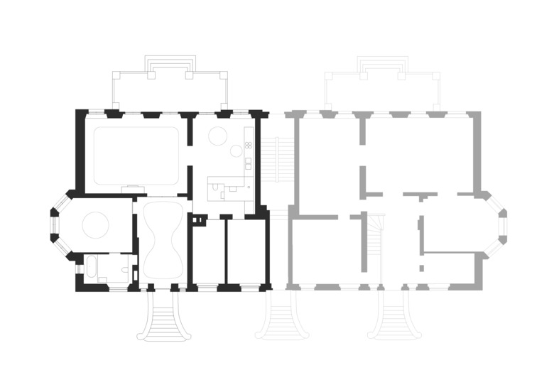
Das von den Architekten Grisebach und Rehmann 1923 geplante und heute denkmalgeschützte Mietshaus vereint Typologien des Wohnungsbaus der Reformbewegung mit gestalterischen Rückgriffen auf die Formensprache des Barock. Die Sanierung macht die ursprüngliche reformative Raumidee der Belétage wieder erlebbar. Minimalistische innenräumliche Eingriffe überhöhen die bereits der Ursprungskonzeption eingeschriebene Dualität moderner Raumkomposition und „tradierter Oberfläche“ zu einem Raumerlebnis aus Atmosphäre und Irritation.
- Architects
- Ludloff Ludloff Architekten
- Any
- 2012
- Estat del projecte
- Construït
- Client
- privat












