Bergstation und Restaurant Horbergbahn

Fotografia © Günter Richard Wett

arp – architekten reitter pfleger

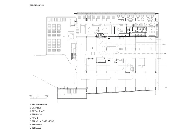
Dass es sich bei der in rund 1.700 Meter Seehöhe errichteten Bergstation der Mayrhofner Horbergbahn um das Recycling bzw. die Überformung einer ehemaligen Struktur aus den 1960er Jahren handelt, ist dem anmutig sachlichen, an den beiden Stirnseiten vollflächig verglasten Gebäude nicht anzumerken. Die Station, die als Zubringer zum Skigebiet Schwendau-Penken große Transportkapazitäten zu bewältigen hat, sollte anfänglich nur im Restaurantbereich (das ursprünglich im Unterbau der Lifthalle untergebracht war) ausgebaut werden, doch die Architekten haben aus dieser Anforderung eine umfassende räumliche Neuordnung entwickelt, die nicht nur die funktionalen Abläufe der Bergstation verbesserte, sondern die gesamte Anlage architektonisch auf eine höhere Qualitätsstufe hob.

Die Ankunftshalle wurde in Längsrichtung geteilt, zwei Drittel sind dem Seilbahnhof vorbehalten, ein Drittel wurde niveaugleich zum Restaurant ausgebaut, und hinter den Rolltoren des Untergeschosses stehen nun ausreichend Flächen für Werkstätten, Garagen, Serviceräume, Pistenfahrzeuge etc. zur Verfügung.

Ostseitig wurden an die bestehende Stahlkonstruktion der alten Satteldachhalle zwei Joche angehängt, und an der exponierten Nordseite geht die ehemalige Kante des nun mit Calcit-Blechen gedeckten Daches in ein schutzbietendes Halbkreisprofil über, das die Fensterfront des neuen Gastraums mit einer räumlichen Geste umfängt.

(Text: Gabriele Kaiser)

Fotografia © Günter Richard Wett
Fotografia © Günter Richard Wett
Fotografia © Günter Richard Wett
Fotografia © Günter Richard Wett
Fotografia © Günter Richard Wett
Fotografia © Günter Richard Wett
Architects
reitter_architekten
Any
1999
Estat del projecte
Construït

Projectes relacionats 

  • Moos
    playze
  • Reiters Reserve Premium Suiten
    BEHF Architects
  • Erweiterung und Instandsetzung Hallenbad Altstetten
    MIYO Visualisierung
  • Neubau von fünf Einfamilienhäusern
    Bäumlin+John AG
  • The Forge in der 105 Sumner Street in London
    Kiefer Klimatechnik GmbH

Revista 

Altres projectes per reitter_architekten 

Feuerwerk Binder
Fügen, Austria
Aufstockung und Sanierung Wohnanlage Saggen
Innsbruck, Austria
Sonderpädagogisches Zentrum Innsbruck
Innsbruck, Austria
Haus Brugger
Aldrans, Austria
Jugendzentrum am Tivoli
Innsbruck, Austria