Besucherzentrum Viamala Schlucht
2012 - 2014 / Studienauftrag / Architektur: Iseppi-Kurath GmbH / Bauherrschaft: ViamalaInfra Betriebsgenossenschaft, Thusis
Die Viamala Schlucht ist ein Naturschauspiel, ihre historische Erschliessung einzigartiges Kulturgut. Diese beiden Fakten waren und sind Ausgangspunkt für die touristische Erschliessung der Schlucht. Heute ist sie Aushängeschild und Visitenkarte einer ganzen Region.
2012 beauftragte der Verwaltungsrat der „Viamala Infra Betriebsgenossenschaft“ die Architekten Ivano Iseppi und Stefan Kurath die Anlagen in der Schlucht zu sanieren und ein neues Besucherzentrum zu erstellen.
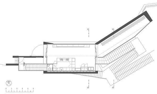
Den rund 40 m2 grossen Raum des Besucherzentrums mit Kassabereich und Verkaufsfläche überspannt ein leicht asymmetrisches Giebeldach. Während der Bau zur Strasse und zur Schlucht hin geschlossen wirkt, ist die Süd- und Nordseite des Gebäudes mit grossflächigen Fenstern versehen. Diese raumhohen, strukturellen Öffnungen rahmen die eindrückliche Landschaft. Ein schmales Trichterfenster ermöglicht die Einsicht in das Besucherzentrum von der Strasse her. Das Materialkonzept mit Beton, Holz und Stahl reagiert auf die archaische Umgebung der Schlucht.
Die Besucher gelangen durch das Besucherzentrum hindurch über eine ausgesetzte Treppe in die Schlucht. Der Weg führt durch einen zusätzlichen Ausstellungsraum der sich unter dem Kassabereich befindet. Von dort gelangt man auf die bestehende Treppenanlage aus dem Jahre 1903, die schliesslich in die Schlucht führt. Nach der Besichtigung der Schlucht führt der Weg auf der Südseite des Besucherzentrums zurück ins Gebäudeinnere. Eine an das Besucherzentrum angegliederte Terrasse bietet Sitzplätze für diejenigen, die den steilen Weg in die Schlucht nicht auf sich nehmen können und/oder einen Kaffee mit Sicht in die Schlucht geniessen wollen.
- Architects
- urbaNplus / Stefan Kurath / GmbH
- Any
- 2014
- Estat del projecte
- Construït









