Bildungscampus Luise Büchner - Lincoln-Siedlung
Einsteinstraße 3, Darmstadt, Germany
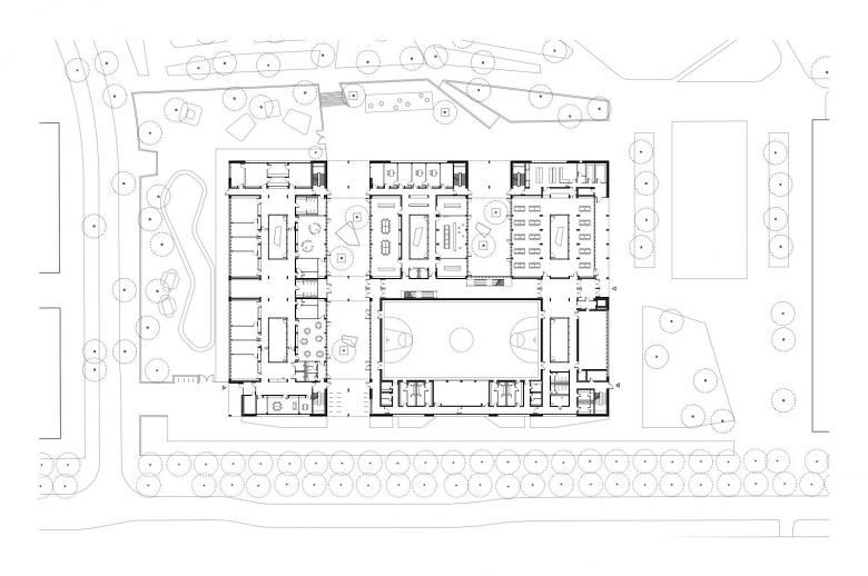
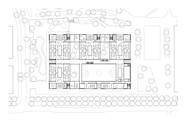
Schule und Kindertagesstätte sind zu einem Baukörper zusammengefügt, jedoch auch eigenständig ablesbar. Durch die ebenengleiche Anordnung aller Klassen wird der Austausch der Schüler zwischen den Jahrgangsstufen und so das Lernen von- und miteinander gefördert. Die Klassenräume öffnen sich zu den pädagogisch vielfältig nutzbaren, räumlich differenzierten Lernzonen. So entstehen unterschiedliche Bereiche, die selbstorganisierten, offenen wie auch abgeschlossenen Wissenserwerb, Lernen und Arbeiten alleine oder in der Gruppe ermöglicht. Die Gruppenräume der Kindertagesstätte sind L-förmig um zwei Lichthöfe angeordnet und zu den zugehörigen vorgelagerten Freiräumen orientiert.
BDA Hessen, Joseph-Maria-Olbrich Plakette – 2023 – Auszeichnung
Vorbildliche Bauten in Hessen – 2023 – Shortlist
- Architects
- Waechter + Waechter Architekten
- Any
- 2021
- Estat del projecte
- Construït
- Client
- Wissenschaftsstadt Darmstadt
- Wettbewerb
- 2016 - 1. Preis




















