Bundesasylzentrum in Altstätten
Altstätten, St. Gallen, Switzerland
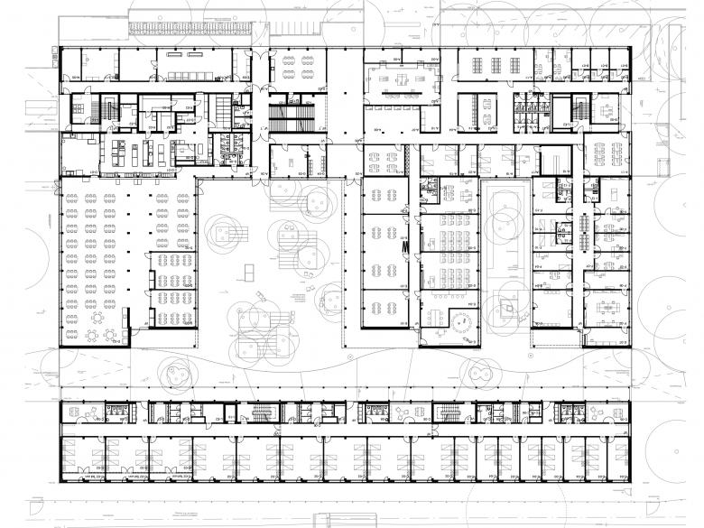
Die Enfilade ist ein Sinnbild von Modularität und Individualität, von wirtschaftlicher Pragmatik und räumlichem Reichtum. Sie ist das Rückgrat des Bundesasylzentrums in Altstätten und gewährt den Gesuchstellenden Begegnungsräume und Rückzugmöglichkeiten zugleich. Angelagert an die Enfilade ist der Dorfplatz das Herz des Ensembles. An den Enden inszenieren intime Räume wie der Spielplatz und der Pavillon die Landschaft und bieten individuelle Rückzugsmöglichkeiten.
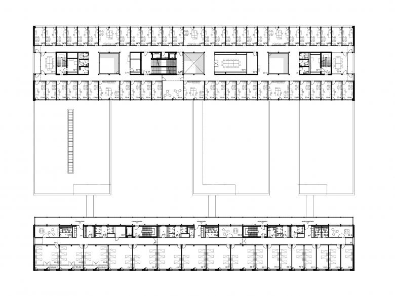
Drei eingeschossige Pavillons für gemeinschaftliche Nutzungen werden gerahmt vom Verwaltungsgebäude im Westen und dem Wohnteil im Osten, zwei Riegeln in Nord-Süd-Richtung. Dank der hohen Flexibilität sind nachträgliche programmatische Änderungen problemlos umsetzbar.
Das Material Holz schafft nicht nur eine angenehme, stressfreie Atmosphäre im Bundesasylzentrum, sondern überzeugt auch durch kurze Bauzeit, einen hohen Vorfertigungsgrad, niedrige Grauenergiewerte und regionale Wertschöpfung.
- Architects
- Ruprecht Architekten
- Any
- 2017 - 2024
- Estat del projecte
- En construcció
- Client
- Bundesamt für Bauten und Logistik BBL













