Bundeswehrfachschule

An der Trift, Karlsruhe, Germany
Fotografia © Stefan Müller-Naumann

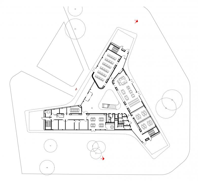
Der Neubau der Bundeswehrfachschule liegt im Randbereich des parkartigen Geländes der General-Fahnert-Kaserne. Die den Kontext prägenden Themen »Stadt – Wald – Kaserne« haben die Formfindung gelenkt. Das Ergebnis des Entwurfsprozesses ist ein dreiflügeliges Gebäude, dessen Seiten mit dem jeweiligen Gegenüber kommunizieren. Der neue Bildungsbau zeigt sich als identifikationsstiftender Solitär im Park, der sich durch seine städtebauliche Ausformulierung wie selbstverständlich in den Campus einfügt.

Um die beeindruckend großzügigen Grünflächen maximal zu schonen, wurde das Gebäude dreigeschossig konzipiert. Weit in das Grün auskragende Flügelenden erzeugen einen leichten, schwebenden Charakter. Die beiden schwebenden, großzügig verglasten Obergeschosse nehmen die Unterrichtsräume auf, das Erdgeschoss die »öffentlichen« Funktionen.

Die Architektursprache und Fassadengestaltung tritt mit einer klaren und zeitlosen Gestaltung dem natürlichen Landschaftsraum mit seinen jahreszeitlich wechselnden Stimmungen gegenüber.

Eine vorgesetzte »zweite Haut« schützt das Gebäude vor Sonneneinstrahlung und kann zusätzlich als Wartungsgang genutzt werden. Raumhohe, schwenkbare Sonnenschutzelemente in Verbindung mit der geschwungenen Gebäudeform erzeugen ein lebendiges, abwechslungsreiches Erscheinungsbild, das die Kontinuität von Landschaftsraum und Gebäude weiter betont.

Fotografia © Stefan Müller-Naumann
Fotografia © Stefan Müller-Naumann
Fotografia © Stefan Müller-Naumann
Fotografia © Stefan Müller-Naumann
Fotografia © Stefan Müller-Naumann
Dibuix © v-architekten
Dibuix © v-architekten
Dibuix © v-architekten
Architects
v-architekten
Any
2019
Estat del projecte
Construït

Projectes relacionats 

  • Moos
    playze
  • Reiters Reserve Premium Suiten
    BEHF Architects
  • Erweiterung und Instandsetzung Hallenbad Altstetten
    MIYO Visualisierung
  • Neubau von fünf Einfamilienhäusern
    Bäumlin+John AG
  • The Forge in der 105 Sumner Street in London
    Kiefer Klimatechnik GmbH

Revista 

Altres projectes per v-architekten 

Gemeindezentrum Haus der Kirche
Köln, Germany
Gesamtschule Wasseramselweg mit Sporthallen
Köln, Germany
Grundschule Berg-am-Laim
München, Germany
Fassade Contipark-Parkhaus
Köln, Germany
Zweiburgenschule Weinheim
Weinheim, Germany