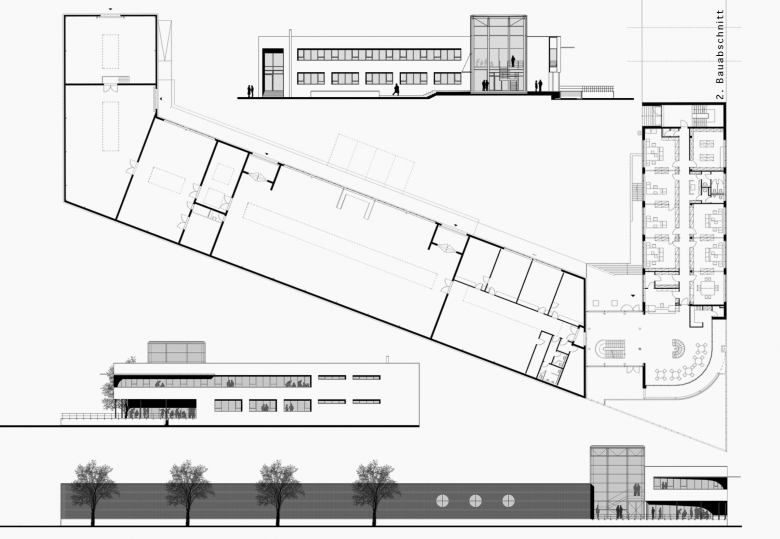
Büro- und Ausstellungsgebäude Paderborn
Paderborn, Germany
Mit einem dezenten gestalteten städtebaulichen „Auftakt“ für den Gewerbepark Hoppenhof in optisch wirkungsvoller Ecklage verband der Bauherr zugleich den Anspruch an individuelle Gestaltung und Identität.
Die unterschiedlich langen Baukörper von Büros und Werkstätten werden als plastische Baukörpergruppe mit einem gläsernen Foyer- und Ausstellungsturm zusammengeführt.


















