Cafeteria IZS Stuttgart
Stuttgart, Germany
Morgens in Deutschland, genau genommen in Stuttgart. Mitarbeiter*innen des Institutszentrums drängen in die neue Cafeteria. Mit fünf Fraunhofer-Instituten und weiteren fünf angegliederten Partnerinstituten der Universität Stuttgart zählt das Fraunhofer-Institutszentrum (Fraunhofer IZS) zu den größten Forschungszentren in Deutschland. Die Vervierfachung der Mitarbeiterzahlen machte eine Erweiterung der Cafeteria dringend nötig.
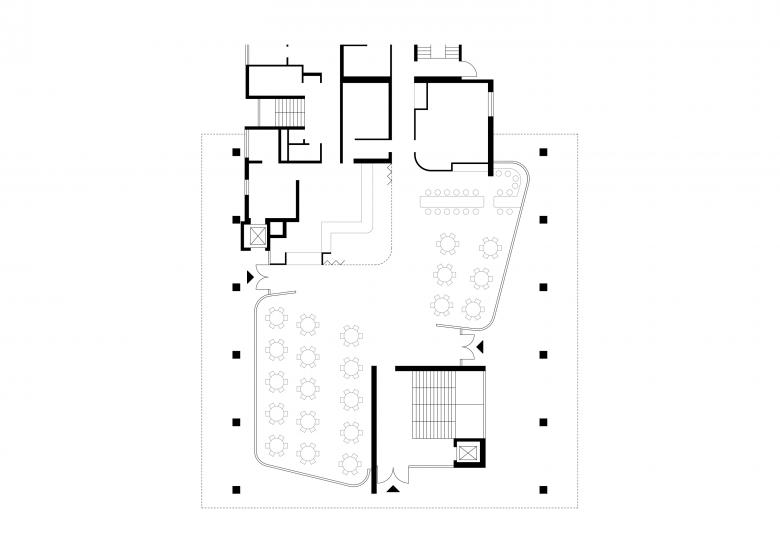
Das sowohl funktional als auch gestalterisch in die Jahre gekommene Gebäude wurde im Gastbereich komplett neu gedacht, um mehr Sitzplätze sowie mehr Nutzungsflexibilität zu ermöglichen. Dazu wurde der Gastraum der Cafeteria im Erdgeschoss abgerissen und unter der später errichteten Kantine im Obergeschoss eine neue freie Cafélandschaft eingefügt, die sich mit Rundungen vom Bestand formal löst.
Die vorhandene Tragkonstruktion sowie die gebäudetechnischen Anlagen wurde für die bauliche Intervention soweit möglich genutzt und integriert, Küche und Nebenräume waren für ihren Zweck ausreichend, Ausgabebereich sowie Anlieferung wurden erweitert. Neben einer Optimierung der funktionalen Anforderungen und Vergrößerung der Sitzplatzanzahl ging es vorrangig darum, Raum zur informellen Kommunikation zwischen den Mitarbeitern zu schaffen, unterschiedliche Aufenthaltsqualitäten zwischen Kommunikation und Rückzug. Ein Ort des Wohlfühlens und Auftankens im stressigen Forschungsalltag.
Die differenzierten Raumzonen werden durch runde Akustiksegel formal verbunden. Die Elemente in unterschiedlichen Durchmessern sind in verschiedenen Höhen von der Decke abgehängt und bilden einen artifiziellen Himmel, an dem sich weiße und grüne Elemente abwechseln und farbige Frische in den Raum bringen.
- Architects
- Sehw Architektur
- Any
- 2018
- Estat del projecte
- Construït

















