Campo Breitenlee
Podhagskygasse 20 - Pfalzgasse 5, 7, 9, Wien, Austria
Der Campo Breitenlee „gemeinsam wohnen“ bietet eine vielfältige und inspirierende Wohnumgebung mit einem großen Angebot an unterschiedlichen Wohnformen. Als füllendes Motiv der Lücke zwischen Stadt und Land, setzen synn architekten und Treberspurg & Partner Architekten in diesem Projekt auf eine lockere, kleinteilige Bebauung und ermöglichen dadurch eine klimatisch wirksame gute Durchlüftung, Belichtung und Beschattung, sowie viel Platz für eine üppige Freiraumgestaltung. Durch die zahlreichen sozialen Angebote der Erdgeschoßzone und die grüne Urbanität zwischen den Bauköpern, entwickelt sich hier eine nachhaltige, diverse Wohnkommune.
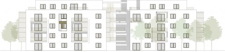
Das Quartier wird in drei Wohnatmosphären gegliedert: Stadthäuser, große Schmetterlinge und kleine Schmetterlinge. Die Stadthausriegel bilden im Norden und Osten eine Kante zur angrenzenden Straße, deren Wirkung durch eine horizontale Gliederung der Fassade weiter verstärkt wird. Die zentralen, großen Schmetterlinge, sind durch begrünte Brücken miteinander verbunden – der Name kommt von der flügelähnlichen Form des Umrisses. Durch die sich an den Brücken befindenden Gemeinschaftsräume und den Versatz der verbundenen Baukörper zueinander, bleibt viel Platz für helle Eckwohnungen mit freier Aussicht auf die Umgebung. Die am westlichen Rand liegenden kleinen Schmetterlinge, bilden durch eine geringere Höhe und kleinere Fläche den Anschluss an die angrenzenden Einfamilienhäuser und schaffen somit Synergie zwischen Bestand und Neubau.
Begleitet von einem nachhaltigen Energiekonzept bleibt das Projekt in der Errichtung ökonomisch und in der Nutzung Kosten- und Verbrauchsgering. Durch den Einsatz von hocheffizienten Wärmepumpen, Photovoltaikanlagen und Bauteilaktivierung in der Gebäudehülle, schaffen wir einen angenehmes Wohnklima, welches durch den großflächig begrünten Freiraum ins Äußere übergetragen wird. Hier wird auch durch die Pflanzung von Obstbäumen, Bereitstellung von Beeten und vielen Aufenthaltsmöglichkeiten zum Urban Gardening und Zusammenkommen im Freiraum animiert.
Eine Vielfalt an verschiedenen Wohnformen, wie dem Wohnverbund+, Ich-Du-Wir, Housing-First, Angebote für Alleinerziehende und Eigentums- und Mietwohnungen, fördert die gesellschaftliche Durchmischung und etabliert ein breites soziales Angebot für die Bewohnenden. Die „PodhagskyKantine“, in der Nähe des Kindergartens, stellt den Hauptgemeinschaftsort dar und ermöglicht durch einen großen Multifunktionsraum eine Vielzahl an Nutzungen für Events und Freizeitgestaltung – hier findet auch Beratung durch neunerimmo/neunerhaus und Juno statt. Um Innerhalb der Wohnblöcke Gemeinschaft und Begegnungszonen zu schaffen, werden unter anderem „Bellevues“, gemeinsame, halböffentliche Balkone, mit großen Sonnenfenstern, offene Bereiche auf den grünen Brücken und Nischen zur Überwinterung von Pflanzen, geschaffen.
- Architects
- synn architekten
- Any
- 2024
- Estat del projecte
- Construït
- Client
- ÖVW Österreichisches Volkswohnungswerk, Wiener Heim Wohnbaugesellschaft m.b.H.
- Equip
- DI Monika Kuch, DI Igor Dimitrovski, DI Andjela Kovacevic
- PartnerarchitektIn
- Treberspurg & Partner Architekten
- Bauunternehmen
- Strabag AG
- Freiraumplanung
- Carla Lo Landschaftsarchitektur
- Statik, Bauphysik, Haustechnik
- Mischek ZT
- Sozialkonzept
- wohnbund:consult
- Ökologische Beratung
- bauXund
- Kooperationspartner
- Juno, neunerimmo


















