Campus USI

Lugano, Switzerland

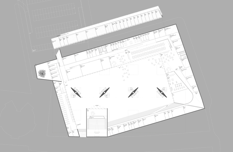
Il progetto per il nuovo Campus USI a Lugano è un tassello che si aggiunge ad un sistema esistente di spazi pubblici lungo le sponde del fiume Cassarate, che attraversa la città. Tramite un intervento unitario per l’intero lotto, che si realizza nella scelta di un grande tetto, integra la scala territoriale. Inoltre grazie ad un intervento compatto che si realizza in un basamento unitario, il progetto risponde alla scala urbana e la integra. 

La sopraelevazione di gran parte del programma garantisce la fruibilità del piano orizzontale dello spazio urbano creando un grande vuoto aperto e strutturato per la comunità.

La parte adibita allo studio e al lavoro intellettuale – uffici, aule e laboratori – è rialzata da terra, come una nuvola, formando una sorta di città ideale del sapere. 

Il basamento è invece un’opera di terra, che modifica la topografia del terreno. In un unico gesto scava una grande arena pubblica: unitamente il tetto e il basamento definiscono un nuovo ricco spazio pubblico multifunzionale aperto alla città. 

Grazie alla scelta volumetrica e tipologica il campus in ogni sua parte è in costante rapporto con lo spazio urbano e sociale: non crea una cittadella privata e autoreferenziale, ma espone con discrezione la vita del campus al pubblico e fa dialogare lo studio e il sapere con l’intera città.

 

Architects
studio we architettura
Any
2010
Estat del projecte
Disseny

Projectes relacionats 

  • Moos
    playze
  • Reiters Reserve Premium Suiten
    BEHF Architects
  • Erweiterung und Instandsetzung Hallenbad Altstetten
    MIYO Visualisierung
  • Neubau von fünf Einfamilienhäusern
    Bäumlin+John AG
  • The Forge in der 105 Sumner Street in London
    Kiefer Klimatechnik GmbH

Revista 

Altres projectes per studio we architettura 

Villa storica
Cureglia, Switzerland
Casa degli scout
Horgen, Switzerland
Casa Bellavista
Menorca, Spain
Scuola d'infanzia
Stabio, Switzerland
L'Uomo che Piantava Gli Alberi
Lugano, Switzerland