Casa Cotschna - Riattazione

S-Chanf, Switzerland

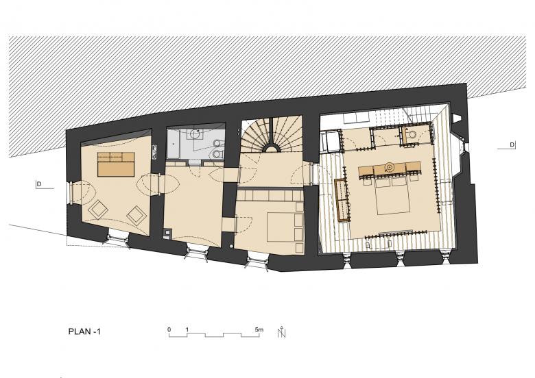
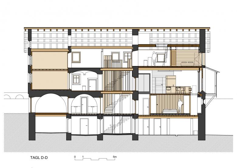
Eine neue, raumbildende Treppe: Renovation eines alten Engadinerhauses

Bei der „Chesa Cotschna“ handelt es sich um ein altes Engadinerhaus, bestehend aus einem bescheidenen Wohnteil mit gestrickter Wohnstube und einem Zimmer, ursprünglich ein mittelaterlicher Wohnturm, einem Mittelbereich, und der Scheune. Im Jahre 1927 wurde das Haus während eines Umbaues „italianisiert“.

Die Renovation fügt eine neue Treppe in den Mittelbereich: die neue vertikale Erschliessung wird zum zentralen Element des Hauses. Die Treppe wird zusammen mit dem Podest als Arbeitstisch als Möbel in einer doppelten Höhe gestaltet. Ein neues Panoramafenster unterstützt diese Idee, als einzige Ausnahme in der einheitlichen Fassade.

Architects
Könz Architetto
Any
2021
Estat del projecte
Construït

Projectes relacionats 

  • Moos
    playze
  • Reiters Reserve Premium Suiten
    BEHF Architects
  • Erweiterung und Instandsetzung Hallenbad Altstetten
    MIYO Visualisierung
  • Neubau von fünf Einfamilienhäusern
    Bäumlin+John AG
  • The Forge in der 105 Sumner Street in London
    Kiefer Klimatechnik GmbH

Revista 

Altres projectes per Könz Architetto 

Piazza Darsena
Paradiso, Switzerland
Casa Camar
Lugano, Switzerland
Posteggio Comunale
Guarda, Switzerland
Nuovo Quartiere Cornaredo
Lugano, Switzerland
Piano di Quartiere Mariöl
Zuoz, Switzerland