Catherine Commons
Catherine Commons is an apartment-style residential community for the Cornell University off-campus student population in the Collegetown district of Ithaca, New York. The project consists of six residential buildings located on two adjacent sites: Catherine North and Catherine South. Prominently lining the main artery of College Avenue and gracefully stepping down in height towards residential neighborhoods and the City of Ithaca, Catherine Commons includes studio, 1-, 2-, and 3-bedroom apartments, all with private bedrooms and bathrooms and access to retail and recreational amenities including a fitness center and indoor and outdoor community courtyards. The buildings set themselves apart from other large-scale student housing in the vicinity, with many of the ground floor corners open to the street to provide double-height public gathering spaces that promote social interaction with the community. Furnished with informal seating that is nearly always in use, these entranceways are monumental yet feel comfortable on a human scale.
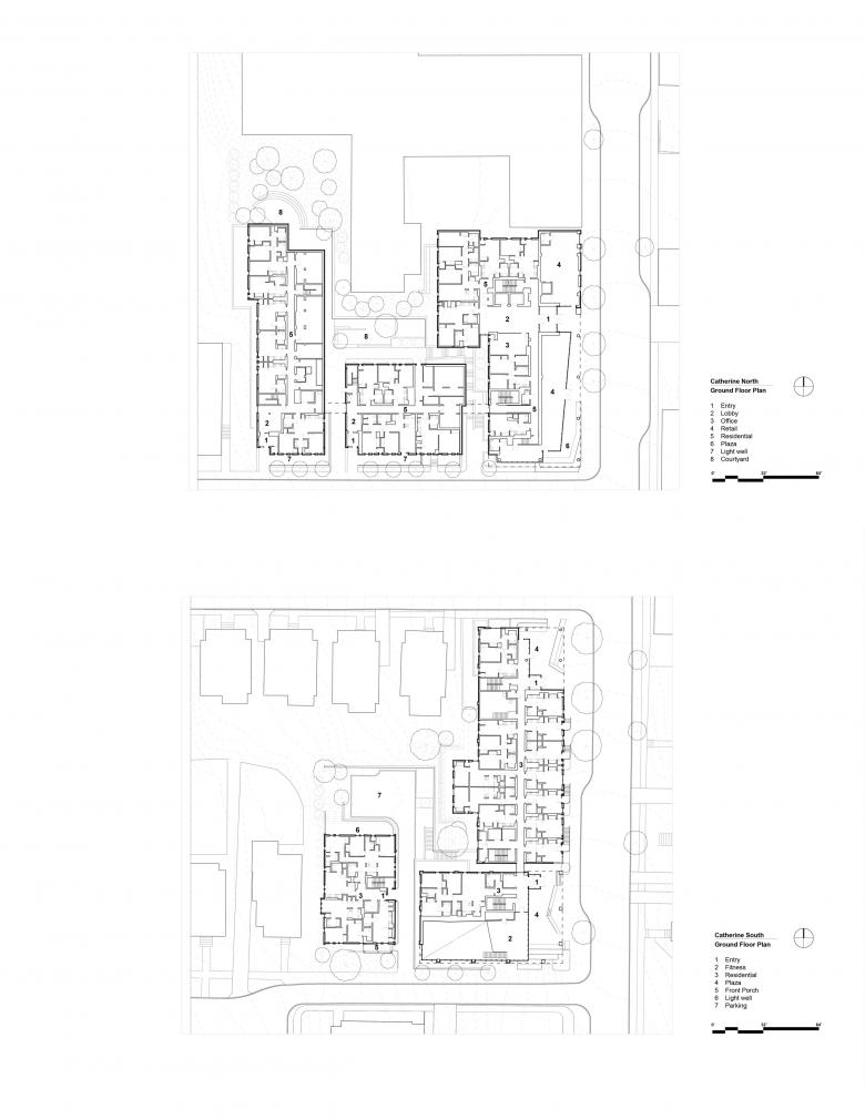
Catherine North encompasses three buildings connected via an open metal pedestrian bridge. An eight-story structure provides commercial spaces on the first floor and multi-family residential units above, while the other two buildings, both four stories, are designated solely for residential use. At ground level, openings between these buildings promote physical and visual connections to an interior courtyard. At Catherine South, three buildings step down in height as grade falls along College Avenue and Cook Street. Two buildings comprise seven stories of multi-family residential units with a ground level fitness center. The other building is residential in form and scale, with a pitched roof, shingles, smaller-scaled windows and dormers, and a projected front porch. This three-story building is set back from the street to align with neighboring houses and to complement the Collegetown vernacular. All six buildings include a playful mix of window sizes and incorporate colorful, high-quality materials such as vertical metal panels with protruding fins, and terracotta bricks in unique, eye-catching patterns.
- Architects
- ikon.5 architects
- Any
- 2024
- Estat del projecte
- Construït
- General Contractor
- Welliver
- Landscape Architect
- Trowbridge & Wolf, Landscape Architects, LLP
- Civil Engineer / Surveyor
- T.G. Miller P.C., Engineers and Surveyors
- Structural Engineer
- Thorton Tomasetti
- MEP Engineer
- IPD Engineering
- Light Gauge Framing Design
- Beardsley Architects & Engineers
- Energy Consulting
- Taitem Engineering, PC
- Geotechnical Engineer
- John P. Stopen Engineering, LLP





















