Central d'energies de Barcelona Sud/Zona Franca,
Carrer Número Dos, Barcelona, Spain
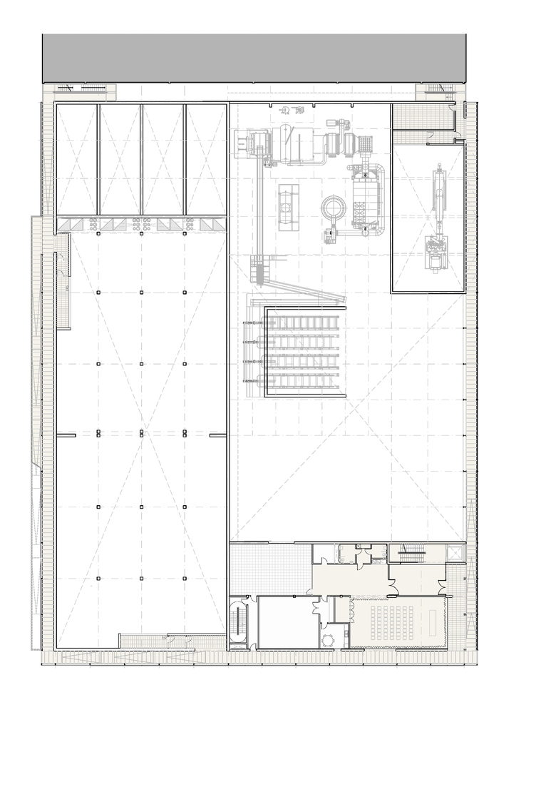
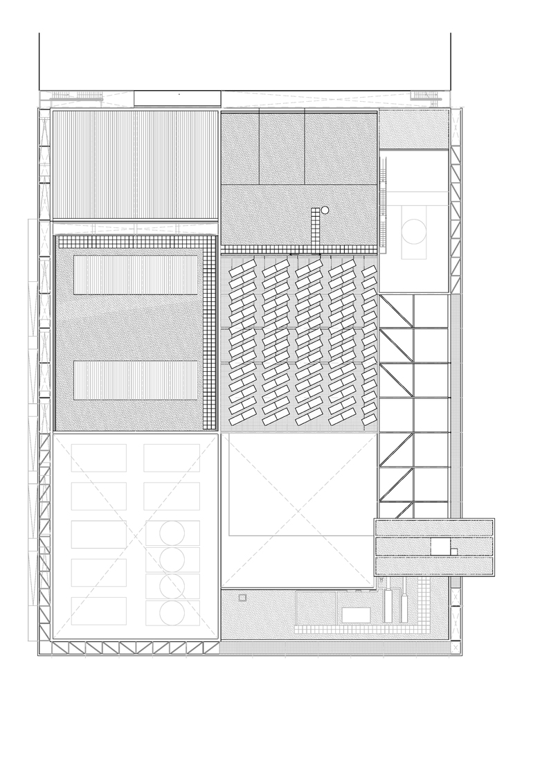
És una central pionera en el sud d' Europa pel que fa a producció i ús sostenible de l'energia, que compta amb diferents tecnologies d' alta eficiència. Proporciona una xarxa urbana de distribució de fred/calor i permet injectar electricitat auto generada a la xarxa de distribució, amb l' aprofitament del fred residual de la planta de regasificació del port de Barcelona i de la biomasa procedent de la poda urbana i metropolitana. La proposta arquitectònica afegeix al programa funcional (industrial i d' oficines), espais destinats a mostrar al públic els processos de producció a través d'un recorregut perimetral de visita a les instal.lacions que acaba configurant les façanes, aportant un caràcter educatiu, formatiu i de divulgació dels valors mediambientals i de sostenibilitat que han d'orientar l'activitat humana. Cadascuna de les façanes està associada a un dels sistemes presents a la central: aigua, biomassa i gas.
- Architects
- Forgas Arquitectes
- Any
- 2009
- Estat del projecte
- Construït













