Centre pédagogique alpin

route des chamois, Leysin, Switzerland
Fotografia © Yves André

1er prix

Situé proche de la gare de Leysin au pied d’une forêt de conifères, le nouveau centre pédagogique alpin « Les Cabris » est actuellement en construction. Il accueillera prochainement les élèves en camp de ski et les professionnels de l’enseignement pour des formations continues de courte durée dans un cadre idyllique.

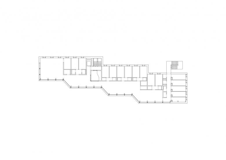
A l’image des établissements de soins pour enfants caractérisant le lieu, le projet s’implante en étirant une grande coursive sur la largeur de la parcelle. Il profite ainsi au maximum de l’orientation solaire et visuelle de la situation. Par de légers déboitements le volume produit des dégagements vers le grand paysage caractérisé par la présence des célèbres Dents-du-Midi. Cette coursive ensoleillée tournée vers les crêtes alpines offre de multiples possibilités d’appropriation pour les groupes qui y séjourneront : salons d’étage, mur de grimpe, salle polyvalente, bars, ...
La construction se veut simple et locale dans une ambiance qui s’apparente à la fois au refuge de montagne et à quelques éléments de confort hôtelier. La matérialité est axée principalement sur le bois allié aux cailloux du Rhône clairsemés sur le sol ou intégrés à quelques murs en béton comme pour se protéger de la neige et proposer un moment d’ouverture.

Fotografia © Yves André
Fotografia © Yves André
Fotografia © Yves André
Fotografia © Yves André
Fotografia © Yves André
Architects
meier + associés architectes
Any
2021
Estat del projecte
Construït

Projectes relacionats 

  • Gymnasium Schulstraße
    Kronaus Mitterer Architekten
  • GROHE Water Experience Center
    D’art Design Gruppe GmbH
  • Limmatquai 4
    Kästli Storen
  • Volksschule Erlaaer Schleife
    Kronaus Mitterer Architekten
  • Ortsdurchfahrt Domat/Ems
    Luminum GmbH

Revista 

Altres projectes per meier + associés architectes 

Villa L
Bernex, Switzerland
120 logements sociaux
Genève, Switzerland
Pont sur le Rhône
Les Evouettes, Switzerland
Collège «Les Pressoirs»
Lonay, Switzerland
Cabane «Topali»
Saint-Nicolas, Switzerland