Cewe Fotobuch Office
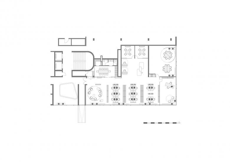
Aufgabenstellung für den Entwurf des Cewe-Office war es, Arbeitsbereiche mit unterschiedlichen Anforderungen inmitten des offenen Großraumbüros zu definieren und zu gestalten. Die Offenheit hat destilat zum Programm erklärt und den üblichen Welcome Desk durch einladende Lounge Inseln ersetzt, die mittels bodenlanger, textiler Raumeiler flexibel zum informellen Besprechungsraum umfunktioniert werden können. Elemente, die vom Boden bis zur Decke mit der runden Form der Fotolinse spielen und sich mehrfach im Raumgefüge wiederholen.
An die Empfangslounge schließen drei Reihen offener Arbeitsbereiche an, die durch raumhohe Metallrahmen markiert sind. Neben der optischen Strukturierung des Raumes ist in diese Rahmen die Beleuchtung integriert, zudem dienen sie als Hängekonstruktion für die Akustikpaneele aus Filz sowie für die separierenden Indoor-Gärten. Die Arbeitsweise des Kunden verlangt neben der offenen Kommunikation auch immer wieder, abgeschirmt nachdenken und „für sich sein“ zu können. Für diesen Zweck wurden mit kleinen Skype-Kabinen „non territorial offices“ geschaffen, die auch als flexible Arbeitsplätze für Außendienst-Mitarbeiter fungieren. Komplettiert wird das Raumgefüge durch eine Teeküche samt Aufenthaltsraum und einem geschlossenen Geschäftsführerbüro, das als weiterer Besprechungsraum genutzt werden kann.
Die lichte Farbwelt des Interior Designs ist durch warme Grün- und Rosatöne bestimmt – die CI Farbe Rot findet sich dagegen nur dezent, jedoch inhaltlich aufgeladen wieder: Wie ein „roter Faden“ zieht sie sich als Zierelement oder Tischbein durch die Innenarchitektur und präsentiert als wandbreites Board die Produkte des Kunden.










