Collège Principal de Pully

© atelier brunecky
© atelier brunecky
© dja
© dja
© dja
© dja
© dja
© dja
© Zaborowsky
© Zaborowsky
© Zaborowsky
Architects
Derendinger Jaillard Architekten
Any
2021
Estat del projecte
En construcció
Auftraggeber
Ville de Pully
Bauingenieur
Schnetzer Puskas Ingenieure
Nachhaltigkeit, Gebäudetechnik, Bauphysik, Akustik
Raumanzug
Brandschutz
Balzer Ingenieure
Wettbewerb
2021
Aufgabe
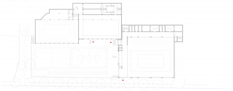
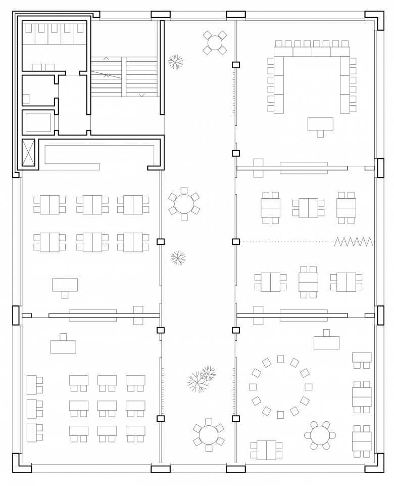
Erweiterungsbau für die Sekundarschule mit 11 Klassenzimmern, Bibliothek / Mediathek, Doppelturnhalle, Schulverwaltung

Projectes relacionats 

  • Moos
    playze
  • Reiters Reserve Premium Suiten
    BEHF Architects
  • Erweiterung und Instandsetzung Hallenbad Altstetten
    MIYO Visualisierung
  • Neubau von fünf Einfamilienhäusern
    Bäumlin+John AG
  • The Forge in der 105 Sumner Street in London
    Kiefer Klimatechnik GmbH

Revista 

Altres projectes per Derendinger Jaillard Architekten 

Gemeindehaus Münsingen
Münsingen, Switzerland
Kantonsschule Ausserschwyz Nuolen
Nuolen, Switzerland
Bahnhof Zürich Altstetten
Zugang Bahnhof Herrliberg / Feldmeilen
Kinderspital Zürich