Gemeindezentrum
Egydiplatz 1, St. Egyden, Austria
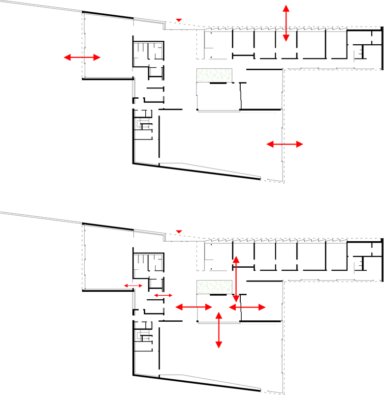
Das neue Gemeindezentrum der Gemeinde St. Egyden bildet gemeinsam mit der Kirche und der Schule ein Ensemble und formuliert ein neues Zentrum. Der neue kontextuelle Gebäudekomplex bildet eine lineare Struktur in Verbindung von Kirchplatz und Sportplatzstraße. Zur weiteren Belebung des Ortes sollen auch die für die Zukunft geplanten Funktionen Café und Trafik (Kleingewerbe) am neuen Gemeindeplatz / Marktplatz entstehen. Der neue Baukörper setzt präzise Akzente unter einem Dach mit einem Eingang. In seiner Baukörperstruktur sind die drei Nutzungen – Gemeindeverwaltung, Gemeindeveranstaltung und Veranstaltungsraum – für die Pfarre klar ablesbar. Die Innenräume orientieren sich zu spezifischen Außenräumen: zum neuen Gemeindeplatz und hofartig zu den Grünbereichen der öffentlichen Streuobstwiese oder in den Pfarrgarten. Somit sind Veranstaltungen auch immer um einen jeweiligen Freibereich erweiterbar. Durch leichte Verschwenkung der Saalwände erhöht sich die Spannung der Innen- und Außenräume. Dieser Gestaltungsidee folgen auch die unterschiedlich geneigten Dachflächen. Sie bilden eine Dach-Landschaft und im Inneren großzügigen Raum, bzw. schaffen Raum für Technikbereiche und Klimapuffer. Die Grundidee der inneren Ordnung basiert auf einer Raumökonomie, die über Schiebeelemente erreicht wird. Öffentliche Zonen, Besprechungs- und Veranstaltungsräume sind unterschiedlich koppelbar und vielschichtig benutzbar. Ein Hof belichtet und belüftet die innen liegenden Bereiche Foyer und Besprechungsräume. Die Nass- und Nebenräume sind wirtschaftlich in einer Zone zusammengefasst. Die zum Grünbereich orientierten Fassaden lassen sich großflächig öffnen. Dadurch wird die Flexibilität noch erhöht wird.
- Architects
- Veit Aschenbrenner Architekten
- Any
- 2009
- Estat del projecte
- Construït










