CONTACT Anlaufstelle Hodlerstrasse, Bern
Hodlerstrasse 22, Bern, Switzerland
Zuschlag und Weiterbearbeitung
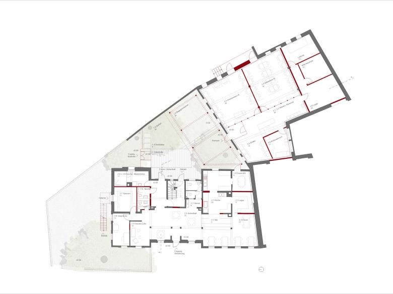
Die Kontakt- und Anlaufstelle für suchtmittelabhängige Menschen befindet sich seit 2001 an der Hodlerstrasse 22. Das Gebäude bildet den Abschluss der zusammengebauten Altstadthäuserzeile Hodlerstrasse 16-22 und grenzt im Norden an den Kopf der Lorrainebrücke. Das Gebäude ist Bestandteil des UNESCO-Weltkulturperimeters und im Bauinventar als erhaltenswertes kantonales Objekt (K-Objekt) eingestuft.
Mit der Gesamtsanierung und Erweiterung soll der Betrieb der Kontakt- und Anlaufstelle gesichert, die Abläufe optimiert und die Zugänglichkeit verbessert werden. Für die fehlenden Flächen steht neu die Garage im Sockel des Nachbarsgebäudes Hodlerstrasse 20 zur Verfügung.
Die Gesamtsanierung und Erweiterung erfolgen unter laufendem Betrieb. Es sind rund vier Bauetappen geplant.
Aufgrund der Lage im Innenstadtperimeter, der engen Platzverhältnisse sowie der erforderlichen Sicherheitsvorgaben ist die Ausführung minutiös zu planen und zu überwachen.
- Architects
- Suter + Partner AG Architekten
- Any
- 2025
- Estat del projecte
- Construït
- Client
- Hochbau Stadt Bern










