Dachaufstockung Herrengrabenweg
Herrengrabenweg, Basel, Switzerland
Entlang des Herrengrabenwegs befindet sich eine sehr durchmischte Bausubstanz. Neben den übrig gebliebenen Gebäuden aus dem frühen 20 Jahrhundert sind die meisten Strukturen aus den 70er oder 80er Jahren.
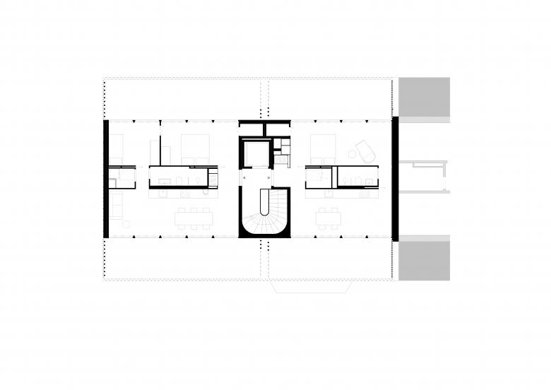
Das betreffende Mehrfamilienhaus wurde von uns mit einer Aufstockung um zwei neuen Kleinwohnungen erweitert. Die Wohnungen werden durch je ein Kernmodul zoniert. Dieses beinhaltet alle bestehenden Steigzonen sowie die Nassbereiche der neuen Einheiten.
Die Räume um die Kerne lassen sich flexibel zuschalten wodurch eine offene und helle Wohnstruktur auf kleinster Fläche entsteht. Die grossen eingebundenen Terrassenflächen vergrössern den Wohnbereich optisch bis in den Aussenbereich.
Die komplette Aufstockung ist aus einem vorfabrizierten Holzbau erstellt worden. Um möglichst wenig Konstruktionsfläche zu generieren wurden die Kernmodule aus 60 mm tragenden Dreischichtplatten ausgebildet und die Fassaden aus filigranen Glaselementen erstellt. Lediglich der Treppenkern und die Giebelwände sind aus tragenden Wänden erstellt. Um die Dimensionierung der tragenden Fassadenstützen klein zu halten wurde das Satteldach durch ortogonal zurücklaufende Wandscheiben auf den Kern abgestützt.
Im Innenraum sind alle tragenden Holzwände hell lasiert. Die Kombination aus dem fugenlosen Linoleumboden, den Holzwänden und der weiss verputzten Dachlandschaft lässt den Raum grosszügig und lichtdurchflutet erscheinen.
- Architects
- Superdraft Studio Basel
- Any
- 2021
- Estat del projecte
- Construït











