Demeterweingut Besson Strasser
Dorfstrasse 75, Laufen - Uhwiesen, Switzerland
Auftrag: Konzept, Planung & gestalterische Begleitung
Umfang: 935m2
Geschosse: 2
Ausgangslage
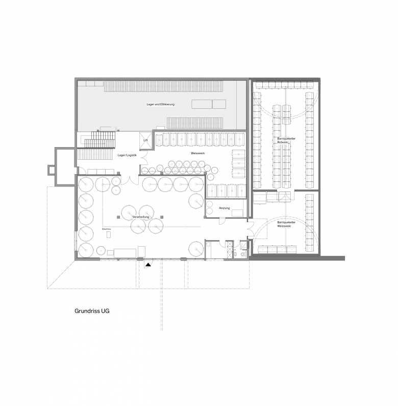
Das Weingut Besson-Strasser nahe des Rheinfalls steht seit 2004 für biodynamischen Weinbau und Qualität. Auf der Südseite des Cholfirsthanges sind neben Verkaufs-, Verwaltungs- und Eventräumlichkeiten, Terrasse und Lager auch die Verarbeitungshalle und Barriquekeller verortet, die der Umbau umfasst.
Im Erdgeschoss des Gebäudes befinden sich, über den Haupteingang zugänglich, die repräsentativen, öffentlichen Bereiche wie Verkostungs- und Eventräume. Der Weinverkauf sowie Zugang zur grosszügigen Aussenterrasse mit Feuerstelle sind ebenfalls im Erdgeschoss verortet.
Unterstützt durch die nach südwesten abfallende Hanglage ergibt sich die Zufahrt zur Anlieferung der Weintrauben in die Verarbeitungshalle im Untergeschoss des Gebäudes. Dadurch ist eine räumliche Trennung von Produktion / Lagerung und Publikumsverkehr gegeben. Die Verbindung beider Geschosse im Gebäudeinneren erfolgt durch eine Treppe und einen Aufzug. Die Grundrisse und räumliche Abfolgen des Konzepts sind auf die Arbeitsabläufe des Weinguts abgestimmt.
Entwurf
Der Aus- und Umbau der Barriquekeller des Weinguts waren Teil des Gesamtkonzepts. Zunächst war die Analyse und Recherche ein wichtiger Schritt um die Grundlagen der klimatischen und räumlichen Anforderungen in Erfahrung zu bringen. Das Barrique ist ein Eichenfass, welches bei der Weinherstellung zum Einsatz kommt. Die Fässer, in denen der Wein während des Reifens gelagert wird, werden in Weinkellern in langen Reihen, teilweise übereinander, angeordnet.
Anders als bei den Räumen im Erdgeschoss des Gebäudes, wo sich Aspekte wie Klimatik und Raumaufteilung an den Personen, die diese Räume nutzen orientieren, liegt im Keller der Fokus auf dem Wein und seinem Reifungsprozess. Die erforderlichen Temperaturen und Feuchtigkeit soll der Philosophie der Bauherren entsprechend, möglichst von natürlicher Herkunft sein.
Projektierung: Baumaterialien/Bauverfahren
In einer Schalung, die der Breite der Wand entspricht wird erdfeuchter Beton schichtweise festgestampft. Eine Schicht umfasst circa eine Höhe von 15-25 cm. Wichtig ist, dass nach dem Feststampfen einer Schicht ausreichend Trocknungszeit vergeht, bevor mit der nächsten Schicht weitergearbeitet werden kann. Der Beton wird schichtweise verdichtet und erreicht einen hohe Festigkeit. Weitere Faktoren wie der Druck beim händischen Stampfen und die Homogenität der einzelnen Schichten sind in dem zeitaufwändigen Verfahren zu beachten um ein dauerhaftes Ergebnis zu erzielen. Das früher fast ausnahmslos für Keller und Fundamente angewendetet Verfahren hat den Vorteil, dass durch den geringen Wassergehalt des Betons kaum Wasser schwindet, wodurch Schwindrisse nahezu kompett vermieden werden können. Stampfbeton besteht aus einem Gemisch aus Natursteinen und Zement. Durch die Verarbeitungsweise des Stampfens ist der Beton deutlich gröber und poriger, als man es von Beton, der bei bewehrten Bauteilen zum Einsatz kommt, gewohnt ist. Die daraus resultierende Wasserdurchlässigkeit, die beispielsweise in Wohninnenräumen unbedingt vermieden werden sollte, begünstigt im Weilkeller die Klimatik positiv. Die Kellerwand kann „atmen“ wodurch im Barriquekeller die optimale Temperatur von 14-16°C in Kombination mit einer Luftfeuchtigkeit von 70-75% konstant gehalten werden kann - und das auf ganz natürliche Weise.
- Any
- 2022
- Estat del projecte
- Construït










