Dienstgebäude AVA Aargauer Verkehr AG

Das mitten im Bahnhofsgelände liegende Gebäude sollte ursprünglich die Geschäftsstelle der Wohlen-Dietikon-Bahn werden. Nach der Einverleibung zweier andere Bahnbetrieben und entsprechend grösserem Raumanspruch wurde die Geschäftsstelle unter neuem Namen in Aarau einquartiert. Das
unlängst fertiggestellte Gebäude wird heute, abgesehen von einem technisch- betrieblichen Teil, als Dienstleistungsgebäude fremdvermietet. Der Entwurf folgt zum Teil den Umrissen des alten Dienstgebäudes, das teilabgebrochen und vergrössert in neuer Erscheinung am alten Ort erstand. Der Leitgedanke war das mitten im Gleisfeld des Bahnhofs stehende Gebäude als ein technisches Werk zu betrachten und es analog der modernen, designmässig absatzlos geschliffenen Zugkompositionen als ebenso windschnittiges Objekt mit flächenbündigen,
verspiegelten Bandfenstern zu gestalten. Mit den benachbarten Gebäuden des «City Centers», der «Depotstrasse» und der benachbarten «AKB-Niederlassung» hat das «Dienstgebäude AVA» nur eines gemeinsam: Dass sie keine Ähnlichkeiten miteinander haben und kein «coporate Identity» unseres Büros sichtbar wird. Wir haben vier unterschiedliche Aufgaben auch 4x entsprechend den unterschiedlichen Vorgaben und Ansprüchen gelöst. Dem Zusammenspiel der Gebäude hat es die nötige Vielfalt und dem Ort die gewünschte Lebendigkeit
erhalten.

Grundriss UG
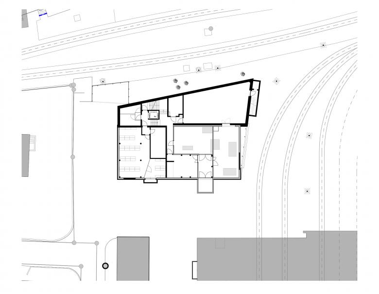
Grundriss EG
Grundriss 1.OG
Grundriss 2.OG
Schnitte
Architects
RUCH ARCHITEKTEN
Any
2017
Estat del projecte
Construït

Projectes relacionats 

  • Passerelle Raststätte Werdenberg
    WALTER BIELER AG
  • Moos
    playze
  • Reiters Reserve Premium Suiten
    BEHF Architects
  • Erweiterung und Instandsetzung Hallenbad Altstetten
    MIYO Visualisierung
  • Neubau von fünf Einfamilienhäusern
    Bäumlin+John AG

Revista 

Altres projectes per RUCH ARCHITEKTEN 

Bergwelt
Grindelwald, Switzerland
Shell Fohlenweid
Bremgarten, Switzerland
Ersatzneubau Reichenbach Nord
Meiringen, Switzerland
City Center
Bremgarten, Switzerland
Galgenbuck (Richtprojekt)
Baden, Switzerland