Dorfzentrum Untersiggenthal
Untersiggenthal, Switzerland
Städtebauliche Gesamtidee - das Dorfzentrum:
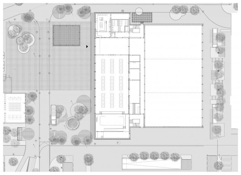
Das neue Dorfzentrum bezieht die prägenden bestehenden Gebäude - Gemeindehaus, Schulgebäude, das anschliessende Wohnquartier in Richtung Anhöhe sowie den Wald - mit ein. Der vorgeschlagene Neubau geht eine enge Beziehung mit dem Gemeindehaus ein. Er nutzt die gesamte Parzellentiefe und definiert mit einer einfachen und klaren Geste den neuen Dorfplatz. Der neue Dorfplatz ist von der Kantonsstrasse aus sichtbar, wodurch die beabsichtigte Adresse als neues Dorfzentrum Bedeutung bekommt.
Die städtebauliche Gesamtidee folgt der starken Orientierung der gebauten Umgebung. Die Baukörper sind in der Tiefe der Parzelle ausgerichtet. Diese Setzung verbindet die neu definierte Flanierzone mit der Schulanlage und mit dem Wohnquartier in Richtung Anhöhe. Die Parzelle wird in ihrer Tiefe geöffnet und die Blickbeziehungen von der Kantonsstrasse in Richtung Norden wahrnehmbar.
Das Dorfzentrum ist als ein ganzes und einheitliches Projekt konzipiert, die bestehende Substanz mit neuer Umgebung und Bebauung ortsspezifisch vereint. Die zwei Haupträume, die Mehrzweckhalle und die Dreifachturnhalle werden zusammengebaut. Die innere raumprogrammatische Anordnung schafft eine Volumetrie mit einem klaren Gesicht zum Dorfplatz. Es entsteht eine einzige neue Adresse. Der Haupteingang ist gegenüber dem Gemeindehaus positioniert und prägt den Dorfplatz. Die Mehrzweckhalle, als Schaufenster auf dem Platz konzipiert, erweitert deren Innenleben bis nach aussen.
Raumprogramm und Anordnung – die innere Organisation:
Das Projekt ist stark von Synergien geprägt. Dennoch bleiben die Mehrzweckhalle und die Dreifachsporthalle autonom und können getrennt voneinander genutzt werden.
Das Foyer dient als Eingangshalle der Mehrzweckhalle und führt gleichzeitig zur Zuschauergalerie der Sporthalle. „Im Piano Nobile“ über dem Foyer befindet sich der Mehrzwecksaal. Diese drei Haupträume sind um das Foyer angeordnet, wodurch für den eintretenden Besucher auf einen Blick die wesentlichen Nutzungen des Gebäudes zu sehen sind.
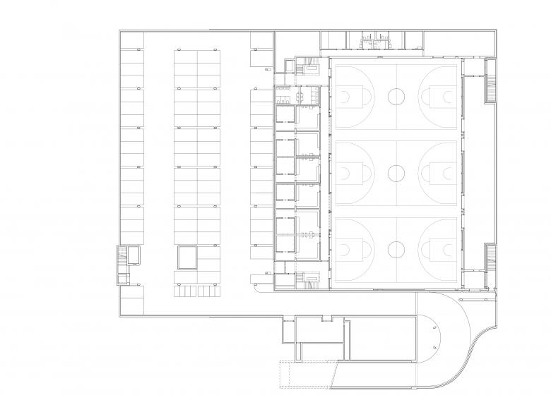
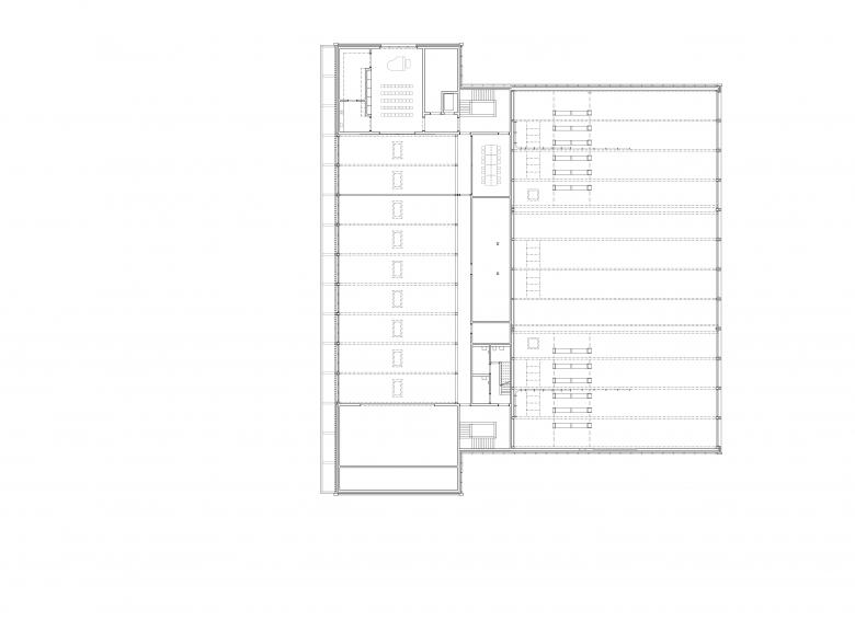
Die Mehrzweckhalle liegt ebenerdig auf dem Dorfplatz und bildet den Empfang für die Besucher. Die wichtigsten räumlichen Komponenten sind in einer praktischen Reihenfolge angeordnet. Von Nord nach Süd: die Küche mit der Anlieferung an der Schulstrasse, das Foyer und die Mehrzweckhalle auf dem Dorfplatz und die Bühne mit Anlieferung am Parkplatz. Diese Sequenz ist also von aussen erschlossen, gewährleistet aber dennoch ein Maximum an Austausch und Interaktion zwischen Küche, Foyer und Mehrzweckraum. Der Geräteraum und das Stuhl-/Tischlager befinden sich in der mittleren Schicht, die an der Halle angrenzt, und bedienen sowohl die Halle als auch die Bühne. Im ersten Obergeschoss sind die Künstlergarderoben über die Zuschauergalerie erreichbar und der Mehrzweckraum befindet sich wie ein Innenbalkon über dem Foyer.
Die Sporthallen sind halb unterirdisch geplant. In einer Zwischenschicht im Untergeschoss sind die Sporthallengarderoben, die so von der Tiefgarage aus leicht zugänglich sind. Diese Nebenräume bilden gleichzeitig eine durchlässige Pufferzone zwischen den Sporthallen und der Tiefgarage.
Das Raumprogramm ist nach Zonen gegliedert, was zu einer hohen Funktionalität bei der Nutzung des Gebäudes führt. Die beiden Haupträume - Mehrzweckhalle und Sporthalle - sind von deren Nebenräumen gefasst: Garderoben, Geräteräume und die Zuschauergalerie befinden sich jeweils in unmittelbarer Nähe mit kurzen Zugangswegen. In der Zone zwischen den Hallenkörpern, die sogenannte Spange, sind alle Nebenräume sowie die beiden Treppenhäuser als vertikale Erschliessung organisiert. An ihnen befinden sich die Nebeneingänge zum Gebäude. Das Treppenhaus 1 im Norden ist das öffentliche Treppenhaus und direkt damit verbunden sind die öffentlichen Funktionen (Mehrzweckraum, Sitzungszimmer, Turnhalle mit Garderoben und Tiefgarage). Das Treppenhaus 2 im Süden dient hauptsächlich der Verbindung von Bühne, Künstlergarderobe, Geräteräumen und dem Serviceeingang im Untergeschoss.
Architektonische Themen – die Konstruktion:
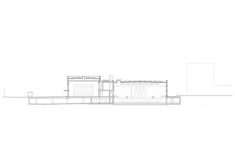
Die Tragende Struktur ist sichtbar und wird gezeigt. Zwei Hauptmaterialien dominieren die Wahrnehmung der Raumbegrenzungen und sind erlebbar: Beton als vor Ort geformte Masse dient dem robusten Gehäuse. Holz als vorgefertigtes vor Ort gefügtes Stab- und Scheibenwerk, bestimmt den Ausdruck der Hallenkörper.
Das Primärtragwerk der Mehrzweck- und Dreifachsporthalle bilden Stützen und Binder in Brettschichtholz. Sie bilden eine Reihung von Rahmen, die untereinander mit Füllungen verbunden sind. Es entsteht eine Reihung, ausdrucksstabil, mit grosser ordnender Wirkung, die auf einen Gesamteindruck ausgerichtet ist. Einzeln gesetzte Elemente (z.B. Basketballkörbe, Tau und Reck, Beleuchtung) werden symmetrisch platziert und in der Wirkung gedämpft.
Die Aussteifung der Hallen in Querrichtung übernimmt die zentral liegende massive Betonspange, mit der diese Segmente verbunden sind. Die massive Betonmasse legt sich um diese „weichen“ Holzstrukturen. Sie bleibt im Ausdruck roh, nimmt sich zurück, erscheint als kontinuierlicher Hintergrund.
Die fachspezifischen Planfelder wie Umgebung, Tragwerk, Haustechnik, sowie die Spezialdisziplinen Energie, Bauphysik, Brandschutz, Licht, Bühne, Küche und Sportgeräte sind integrative Bestandteile, die einerseits architektonisch thematisiert sind und andererseits sich im Sinne eines Gesamteindruckes in Ihrer Wirkung unterordnen. Die Komplexität und Vielschichtigkeit der Bauaufgabe, ergibt sich aus den nutzungsüberlagernden Anforderungen.
Gebäudeausdruck – die Fassaden:
Der Baukörper ist aus der Ferne als gegliedertes und akzentuiertes Gebäude zu lesen. Seine öffentliche Funktion und Bedeutung im Dorfzentrum sind von seiner Kompaktheit und Robustheit geprägt. Durch die Holzfassade soll eine freundliche und einladende Ausstrahlung erreicht werden. Die Struktur und das äussere Erscheinungsbild des Zentrumsgebäudes sollen eine ordnende und fixierende Wirkung für das gesamte Zentrum haben.
Beim Näherkommen wird die Fassade feiner, Details und besondere Verbindungen werden sichtbar und sprechen andere Wahrnehmungsebenen an. Die Fügungen der Holzelemente gliedern das Volumen, geben Rhythmus und Akzente. Sie haben auflösende und plastische Eigenschaften, die dadurch Leichtigkeit transportieren.
Die vier Fassaden sind unterschiedlich gestaltet und folgen der Ausrichtung des Gebäudes. Die West- und Ostfassaden öffnen sich zur unmittelbaren Umgebung und sind über zwei Geschosse verglast. Zum Dorfplatz hin ist diese Verglasung je nach Aussichtspunkt und Lichtsituation ein- oder zweigeschossig zu lesen. Die Nord- und Südfassaden sind eher geschlossen, wobei die Gliederung der Fassadengestaltung eine noch wichtigere Rolle spielt.
Die Bekleidung besteht aus einer geschlossenen Schalung mit aufgesetzten Kantholzprofilen zur Horizontalgliederung der Felder. Sie sind in der Tiefe gestaffelt und architektonisch thematisiert. Die Montage nach Zimmermannsart, kombiniert mit einem hohen Grad an Vorfertigung unter Werkstattbedingungen, ermöglicht eine subtile plastische Gestaltung mit wechselnden Oberflächenstrukturen. Die Variationen in den gehobelten und groben Oberflächen sowie die Unterschiede zwischen matten und glänzenden Ausführungen verstärken das Spiel mit dem Licht. Das Grundraster wird von vertikalen Lisenen und horizontalen, gesimsartigen Bändern gebildet.
- Edificis Públics
- Uso Mixt
- Aparcaments
- Sales d'Esports
- Centres Comunitaris
- Arquitectura del Paisatge
- Places
- Estudis Urbans
- Architects
- NYX ARCHITECTES
- Any
- 2023
- Estat del projecte
- Construït
- Client
- Gemeinde Untersiggenthal
- Landschaftsarchitektur
- Andreas Geser Landschaftsarchitekten AG
- Baumanagement und Kosten
- Gruner AG
- Studienauftrag nach Präqualifikation
- 1. Preis





























