ECO BAR, riuso dell’ex biglietteria del palazzetto dello sport
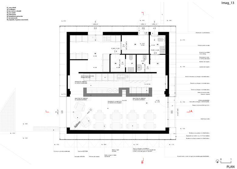
Il progetto riguarda il riuso e la riconversione della biglietteria dell’adiacente struttura polisportiva, in disuso da anni, in un bar- bistrot. L’immobile, di proprietà comunale, è stato oggetto di un bando di concorso per l’affidamento a privati con l’obiettivo non solo di ristrutturare un bene ormai in condizioni fatiscenti, ma principalmente di coniugare i desideri e le aspirazioni private con le necessità pubbliche. L’obiettivo è quello di recuperare l’immobile e contemporaneamente migliorare la qualità dell’ambiente edificato di un’area periferica ad elevata criticità. Il progetto, nel rispetto del regolamento edilizio e del budget, si risolve grazie ad una pelle esterna, realizzata con materiali low cost e da riuso, che ne ridisegna la sagoma (pannelli di aquapanel e listelli di legno da carpenteria). Le bucature dei prospetti laterali (che si affacciano sul palazzetto dello sport a sud e sulle cooperative in costruzione a nord) vengono schermate dal nuovo filtro; due ampie vetrate dei prospetti frontali permettono invece la visuale sul paesaggio urbano. Una porzione del rivestimento è pensato per essere all’occorrenza ribaltato creando dei tavoli esterni. L’involucro funge da parete ventilata e, oltre a schermare gli impianti tecnici, crea un’intercapedine che può essere utilizzata come deposito. All’interno una quinta smaltata in resina poliuretanica divide la zona di lavoro da quella aperta alla clientela. Le travi e i pilastri sono lasciati in calcestruzzo a vista e il pavimento è in battuto di cemento industriale lisciato e trattato con resina trasparente. Il bancone, come un volume pieno, è realizzato in lamiera di ferro mentre tutti gli arredi rimandano a stili vintage retrò.Eco Bar è tra i progetti nominati al Mies Van Der Rohe AWARD 2017.
- Architects
- Giuseppe Gurrieri
- Any
- 2015
- Estat del projecte
- Construït
- Client
- Privato+ pubblico
- Equip
- Arch. Fabrizio Camillieri, Arch. Giulia Filetti, Arch. Valentina Occhipinti
- Impresa costruttrice
- Impresa edile Gianni Distefano
- Strutture
- Ing.Giancarlo Dimartino
- Progettista illuminotecnico
- Valentino Giunta
- Opere in ferro e legno
- OMET


















