Erweiterungsbau der Solling Oberschule
Berlin, Germany
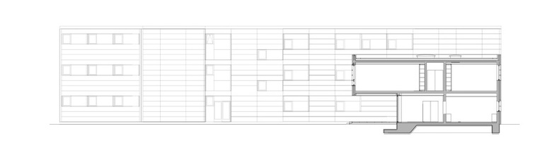
Im Erdgeschoss des Erweiterungsbaus befinden sich im Süden ein Foyer, sowie an der Gartenseite der Speiseraum für ca. 60 Schüler. Dieser Speiseraum öffnet sich entlang der Längsseite über eine vorgelagerte, überdachte Terrasse zum Garten hin. Auf der Nordseite wurde die Küche mit ihrer Anlieferung und den Personalräumen vorgesehen. Über eine großzügige Treppe erreicht man das Obergeschoss welches ebenfalls, wie das Erdgeschoss, stufenlos an den Bestand anbindet. Hier befinden sich die Klassenräume auskragend über die Terrasse. Diese Auskragung ist aufregend und schützend zugleich - sie verwebt Innen mit Außen. Der Erweiterungsbau versucht zwischen Bestand und eigener Haltung zu vermitteln. Er führt einerseits die Höhen- und Fassadengliederung fort und besitzt andererseits ein gänzlich anderes Raumverständnis.
- Architects
- Chestnutt_Niess Architekten PartGmbB BDA
- Any
- 2011
- Estat del projecte
- Construït










