Fachschule der Pädagogischen Akademie Elisabethenstift
Stiftraße 41, Darmstadt, Germany
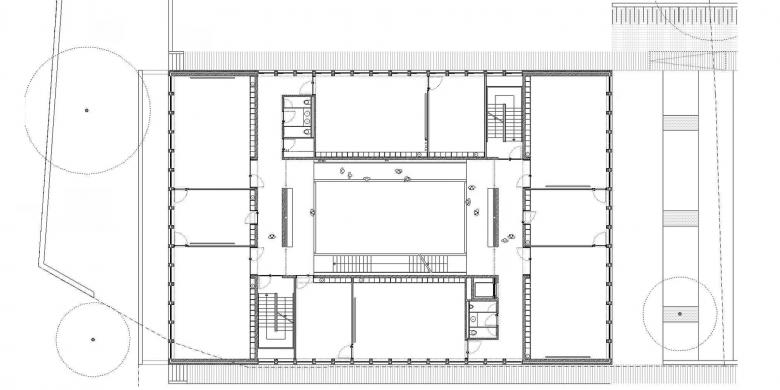
Der 4-geschossige Baukörper des neuen Schulgebäudes öffnet sich schaufensterartig zur Landgraf-Georg-Strasse. Zur angrenzenden Bebauung bildet sich ein campusartiger Platz. Die zentrale, alle Ebenen verbindende Innenhalle bildet das Herz der Schule. Mit ihren Galerien ist die Halle Treffpunkt für Schüler und Dozenten und Versammlungsstätte bei großen Veranstaltungen. Alle der Konzentration dienenden Räume sind ringförmig um die Halle angeordnet. Zwischen den Klassenräumen sind kleinere Gruppenräume angeordnet, so dass differenziertes Lernen in unterschiedlichsten Formen möglich ist. Das Fassadenmaterial nimmt Bezug zu den Altbauten des Elisabethenstifts und der Mathildenhöhe.
- Architects
- Waechter + Waechter Architekten
- Any
- 2008
- Estat del projecte
- Construït
- Client
- Pädagogische Akademie Elisabethenstift
Projectes relacionats
Revista
-
-
Bâtiment de la semaine
The Three-Body Problem: Trapped in a Wave Sandwich
Eduard Kögel, Scenic Architecture Office | 13.04.2026 -























