Farm Office (Production Campus)
Ebvolekpen, Nigeria
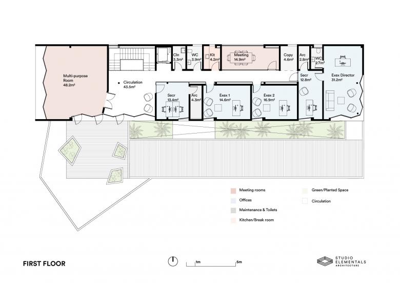
The office building design is a significant aspect of a comprehensive project spanning a 1000-hectare farm in Edo State, Nigeria. It is centrally located within the food production campus to accommodate a workforce of 50 individuals across two floors. The design includes shared office areas, private workspaces, and meeting rooms, aiming to optimize workflow and create a conducive work environment.
A notable feature of the design is the incorporation of a planted courtyard, providing natural light and ventilation to the shared office spaces. The use of interlocking compressed laterite blocks for the facade reflects local craftsmanship and sustainable building practices, contributing to the building’s integration with the natural surroundings. The blocks are being manufactured on site with the soil excavated from the foundation pits as base material.
The zig-zag glass facade enhances both aesthetics and functionality by maximizing natural light penetration while minimizing solar heat gain.
Additionally, amenities such as a shaded outdoor terrace and a tranquil pond near the entrance enhance the overall user experience and promote a harmonious relationship between architecture and the environment.
Overall, the design of the office building emphasizes functionality, sustainability, and aesthetic appeal, contributing to the farm’s overall vision and enriching the working experience for its occupants.
- Architects
- Studio Elementals Architecture
- Any
- 2020
- Estat del projecte
- En construcció
- Equip
- Stefanie Adisa Theuretzbacher, Juergen Strohmayer, Kofoworola Tubi
- Landscaping Team
- Chrili Car
- Structural Engineering
- Neostruct
- Construction
- Adisa Building and Construction
- Rendering
- Aaxy Studio










