Fipo Lounge Bern

Poststrasse 6, Bern, Switzerland

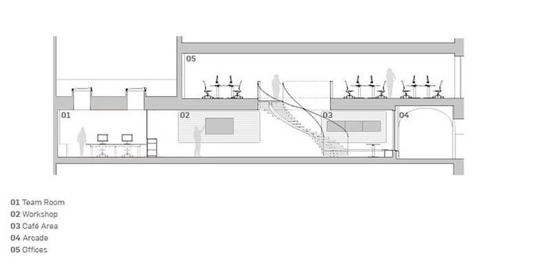
Im Herzen des UNESCO Weltkulturerbes, im Stadtzentrum Bern, in der Kramgasse empfängt die VZ Bern Finanzportal Lounge ihre Besucher in einem modernem interaktiven Umfeld. Das Innenraumkonzept wurde als eine Weiterentwicklung aus dem gebauten Prototypen VZ Zürich heraus entwickelt. Der multifunktionale Tisch wurde auf die Räumlichkeiten des ehemaligen Pelzladens abgestimmt und neu entworfen um mehr Fokus auf die Workshop-Aktivitäten zu setzen. Im vorderen Teil, der als Schaufenster dient und den Arkaden der Altstadt von Bern zugewandt ist, ergänzt ein Café-Bereich die interaktive Lounge und erzeugt für Kunden und Mitarbeiter einen einladenden Ort der Begegnung.

Die prominente Wendeltreppe aus den 1970ern wurde beibehalten und renoviert. Sie verbindet die Besprechungszimmer im Eingangsgeschoss mit den Büros im Obergeschoss. Neue Materialien, wie Holzverblendungen und ein elegantes Metallgeländer, geben der Treppe ein modernes Ambiente und integrieren sie in die Corporate Identity des VZ Innenraums. Das Lichtkonzept wurde unter Berücksichtigung der relativ niedrigen Decken im Erdgeschoss angepasst. Wie beim Prototyp in Zürich erlaubt die Kombination von Allgemeinbeleuchtung mit linearen LED Bändern, indirekter Akzentbeleuchtung in Deckenkanälen, Arbeitsplatzbeleuchtung mit speziell angeordneten Spotleuchten und diskreter Hintergrundbeleuchtung unter dem Tisch eine Varietät von Beleuchtungsszenarien. Über Materialität, Licht und Medien wird eine moderne und dennoch ungezwungene Atmosphäre kreiert, die im Einklang mit dem Online Angebot vom VZ, das ein intelligentes kosteneffizientes Finanzmanagement-Werkzeug bietet, steht.

Architects
Nau2
Any
2014
Estat del projecte
Construït

Projectes relacionats 

  • Eissporthalle Davos
    WALTER BIELER AG
  • Moos
    playze
  • Reiters Reserve Premium Suiten
    BEHF Architects
  • Erweiterung und Instandsetzung Hallenbad Altstetten
    MIYO Visualisierung
  • Neubau von fünf Einfamilienhäusern
    Bäumlin+John AG

Revista 

Altres projectes per Nau2 

Primarschule Courtételle
Courtételle, Switzerland
Quartiertreff Gener
Zollikerberg, Switzerland
VKZ Humor
Schwyz, Switzerland
Raiffeisen Schaffhausen
Schaffhausen, Switzerland
Raiffeisen Kreuzplatz
Zürich, Switzerland