Forschungsgebäude für Pharmazie
Saarbrücken, Germany
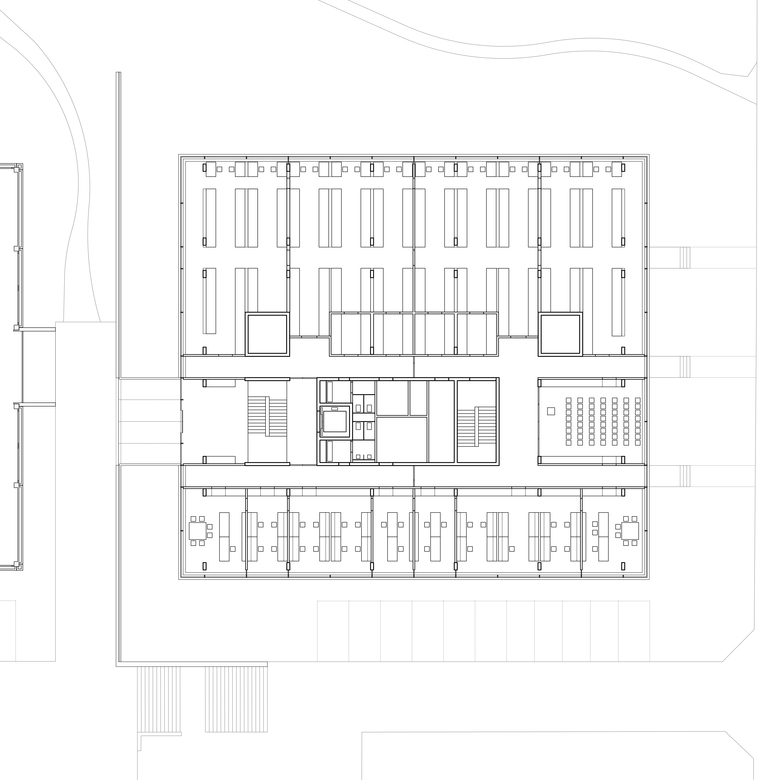
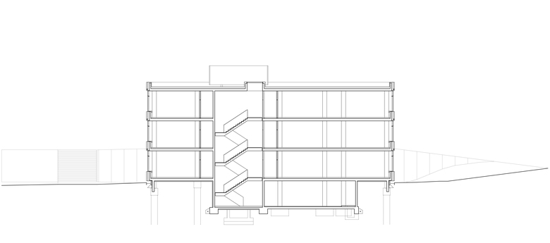
Das Forschungsgebäude für die Pharmazie wird auf dem Campusgelände der Universität des Saarlandes in Saarbrücken als 3-geschossiger Solitär errichtet. Mit seiner Gebäudehöhe orientiert sich der Neubau am bestehenden Institutgebäude für Pharmazie. Dem Raumprogramm folgend wird jeder Nutzungseinheit, also jedem Institut und den Nachwuchsgruppen jeweils ein Geschoß zugeordnet. Die Grundrisse gliedern sich in vier von Westen nach Osten verlaufende Nutzungsschienen die im Wechsel mit Erschließungsbändern die Geschoßflächen zonieren. An den Nutzungsschienen bilden sich zwischen den Stützen Bereiche die als Schrank- und Installationsraum genutzt werden sollen. Drei Lufträume durchschneiden die so entstehenden flexibel nutzbaren Geschoßflächen und belichten auch innenliegende Bereiche. Durch die konsequente Zonierung der Grundrißstruktur in Erschließungs-, Versorgungs- und Nutzflächen, kann sich das Gebäude allen nachträglichen Nutzungsänderungen und -verschiebungen anpassen.
- Architects
- SFA Simon Freie Architekten BDA
- Estat del projecte
- Disseny
Projectes relacionats
Revista
-
Bâtiment de la semaine
The Three-Body Problem: Trapped in a Wave Sandwich
Eduard Kögel, Scenic Architecture Office | 13.04.2026 -
-
















