Galileo's Pavilion

Overland Park, USA

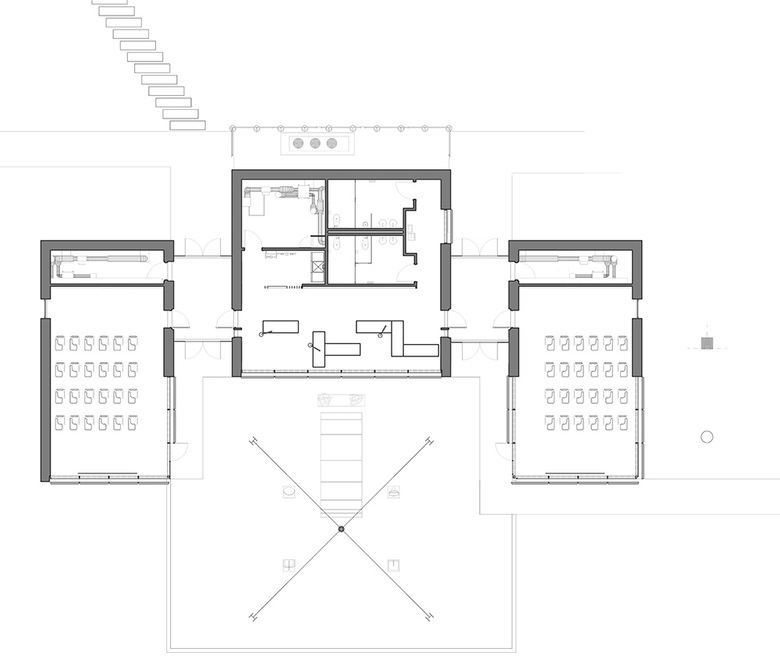
The goals of the Johnson County Community College Center for Sustainability, combined with the need for additional classrooms at the ever-expanding college, led to a unique opportunity to create inspired learning spaces which also serve as an information center for the campus and community at large. The program called for two "inspired" classroom spaces as well as a student lounge that would serve as a teaching tool for the college's faculty to educate their own students about sustainable design.

JCCC's strategic plan calls for the college to champion environmental sustainability in curriculum and in the college's infrastructure, transforming the physical campus into a living learning laboratory. With these goals in mind Galileo's Pavilion was designed to take advantage of the daily and seasonal cycles of nature to passively heat, cool and daylight the building as well as supply electricity and utility water. Sustainable strategies include material innovation, rainwater harvesting, living walls and green roof trays in addition to active systems such as photovoltaics and a wind turbine. Galileo's Pavilion is expected to be Studio 804's fifth LEED Platinum building.

Architects
Studio 804
Any
2012
Estat del projecte
Construït

Projectes relacionats 

  • Moos
    playze
  • Reiters Reserve Premium Suiten
    BEHF Architects
  • Erweiterung und Instandsetzung Hallenbad Altstetten
    MIYO Visualisierung
  • Neubau von fünf Einfamilienhäusern
    Bäumlin+John AG
  • The Forge in der 105 Sumner Street in London
    Kiefer Klimatechnik GmbH

Revista 

Altres projectes per Studio 804 

Modular 3
Kansas City, USA
Modular 4
Kansas City, USA
Sustainable Prototype
Greensburg, USA
Modular 2
Kansas City, USA
Sustainable Residence - 3716 Springfield
Kansas City, USA