Generalsanierung Gasteig
München, Germany
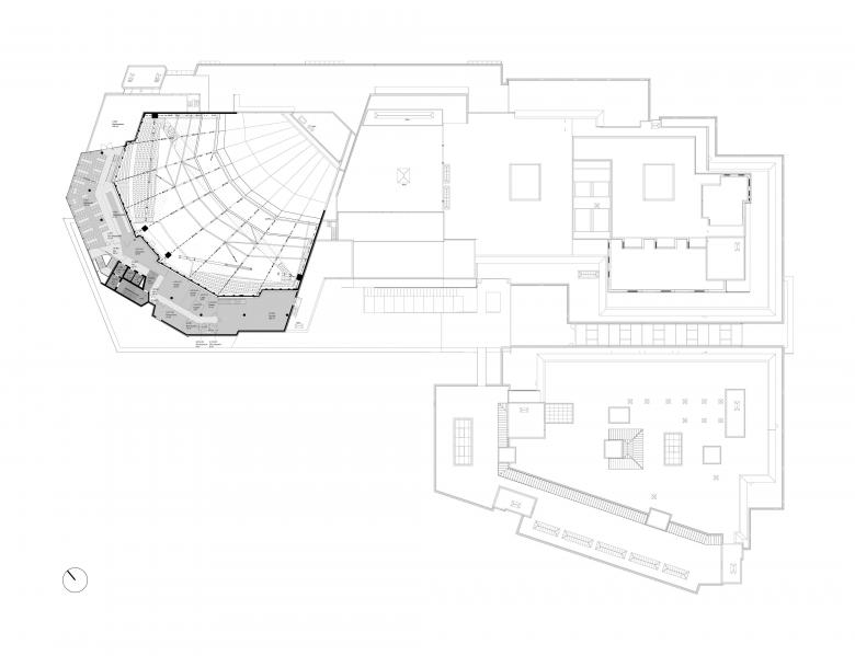
Der Gasteig in München ist mit rund zwei Millionen Besuchern im Jahr das größte Kulturzentrum Europas. Nach über 30 Jahren intensiver Nutzung soll der Gasteig saniert und umgebaut werden. Er wurde von der Architektengemeinschaft Raue, Rollenhagen, Lindemann und Grossmann erbaut und 1984/85 eröffnet. Mit der Sanierung des Gasteig bekommt München ein Gebäude, das mit seinem kulturell vielfältigen Angebot weltweit unvergleichbar sein wird.
Ein neues, bauliches Element, das als gläserne Brücke die bestehenden Gebäudeteile verbindet, gibt dem Gasteig eine neue Transparenz. Sie öffnet den Gasteig zur Stadt, gewährt Einblicke in das Geschehen und lädt alle Besucher und Mitarbeiter ein, Teil des kulturellen Lebens der Stadt zu werden. Diese Kulturbühne wird zum Leitbild und zur Identität des neuen Gasteig. Sie steht gestalterisch mit ihrer transparenten, gläsernen und offenen Architektur bewusst in Kontrast zum monolithischen und mineralischen Bestand.
Der Idee „ONE“ Gasteig folgend zieht sich die neue Kulturbühne als Raumkontinuum horizontal und vertikal durch alle Bereiche des Gasteig. Sie ist Erschließung, Foyer, Ausstellungsfläche und Eventbereich zugleich. Sie ermöglicht Besuchern und Mitarbeitern klare Orientierung und kurze Wege zwischen allen Funktionen. Hier hat jeder Bereich, egal ob die Philharmonie, der Carl-Orff-Saal, die Bibliothek oder die Volkshochschule, seine eigene Adresse und Identität.
- Architects
- HENN
- Any
- 2025
- Estat del projecte
- Disseny
- Client
- Gasteig München GmbH
















