Biblioteca Pública de Girona Carles Rahola
C/ Emili Grahit, 4-6, Girona, Spain
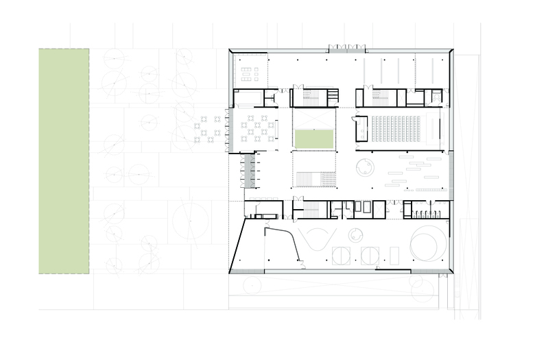
El concepte principal és la naturalització de la Biblioteca. Dins d'un entorn urbà de gran escala "gris", es busca una biblioteca introspectiva que mira una sèrie de patis verds, vinculats a una sèrie de plataformes espacials que marquen una seqüència tridimensional la qual defineix la Biblioteca.
Els patis i terrasses es converteixen en espais de visió de superfícies verdes, com a continuïtat de les zones de lectura interiors, tant a la Biblioteca d'adults com a la de nens. D'aquesta manera i en determinades èpoques de l'any amb les vidrieres obertes, es tindrà una percepció d'estar a l'exterior.
A més de la relació amb l'exterior dels patis, la façana translúcida de l'edifici té espais puntuals transparents (vidrieres) de visió i comunicació puntual amb l'entorn, visions emmarcades i especifiques de la ciutat.
Sempre vam plantejar que la planta és una organització del programa en horitzontal, però que és la secció la que construeix l'espai, establint simples i dobles altures, i sent la llum la que qualifica l'arquitectura.
A la Biblioteca la llum natural és la protagonista. Les façanes de u-glass blanc inunden l'edifici d'una llum suau, especialment agradable per a la lectura. Al mateix temps la llum natural també arriba a través dels patis interiors, tractats amb vidres transparents, que permeten gaudir del verd dels mateixos.
A la nit la Biblioteca és una caixa de llum, una llum urbana.
El projecte, a partir d'una geometria universal: "el quadrat", a través del material dels patis i de l'arbrat, intenta ser un projecte amb personalitat i de fort impacte visual en l'entorn, manifestant-se com un equipament de primer ordre, clarament diferent i singular davant del dens teixit residencial que l'envolta.
El programa de la Biblioteca està plantejat en quatre nivells, articulats per dobles altures i patis, seguint l'organització i les relacions establertes en el programa funcional.
- Architects
- Mario Corea Arquitectura
- Any
- 2013
- Estat del projecte
- Construït














