Gleis 21 - We bring the village to the city
Vienna, Austria
Name of work in English
Gleis 21 - We bring the village to the city
Name of work in original language
Gleis 21 – Wir bringen das Dorf in die Stadt
Placement
Shortlisted
Prize year
2022
Year completed
2019 (Year began 2017)
Authors
Markus Zilker (1975 Austria); Francesca Bocchini (1974 Austria); Annegret Haider (1980 Austria); Victoria Marek (1984 Austria)
Collaborators
Collaborator (external): Realitylab Construction: Weissenseer Holz-System-Bau GmbH Landscape architect: YEWO LANDSCAPES GmbH
Program
Collective housing
Labels
Linear block, Social
Total area
1691 m2
Usable floor area
3886 m2
Client
Schwarzatal Gemeinnützige Wohnungs- und Siedlungsanlagen GmbH + Verein Wohnprojekt Gleis 21
Client Type
mixed
Map
LatLng: (48.1790216, 16.3861299)
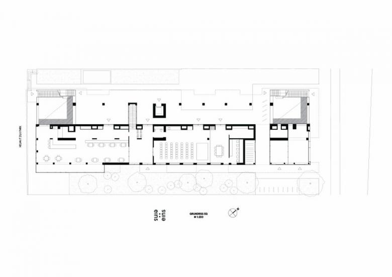
Lived Urbanity. We bring the village to the city. Under the motto “Setting the course together”, the co-housing project Gleis 21 was planned in a participatory manner with the future residents, from urban development to the socket outlet. The property is located in the center of the new urban development area "Leben am Helmut Zilk Park" near the Vienna Central Station („Hauptbahnhof Wien“). The project and the cultural association of the same name want to contribute to the development of the district. Communication within and outward, is key at Gleis 21. The co-housing project Gleis 21 builds on three major principles: “living in solidarity”, “indulging cleverly”, and “creating with media”. Solidarity is lived in a variety of ways, be it simple neighborhood services or a Solidarityfund for personal emergencies. Lived solidarity also includes certain appartements, that were planned in cooperation with Diakonie Flüchtlingsdienst (a refugee aid organization), that can be given to refugees. To help shape the cultural, social and media life in the newly developed quarter, a cooperation with Radio Orange, Okto TV and Stadkino Wien (cinema) was formed. The cultural Organization Gleis 21 is going to ensure a steady cultural program adapted to and in unison with its surroundings. A music-school on the lower floor rounds out the cultural scope of opportunity. Extensive communal areas represent the focus of the communal aspect and offer space for common and individual use: from the communal kitchen to the library and sauna on the top floor to the workshop, studio and fitness room in the basement. The selection and details of community-spaces were made by the residents and form the center of communal aspects of the project. The project was designed as a compact, zero-energy house („Niedrigstenergiehaus“) in a wood-hybrid construction and was built in a resources saving way. The individually planned housing-units on the upper four floors are accessed via an open north-west-facing arcade and are all equipped with private balconies. The neutral and flexible structure of the building enabled each unit to be planned individually in collaboration with its residents
- Architects
- einszueins architektur ZT GMBH
- Any
- 2019
- Estat del projecte
- Construït















