Gymnasium Burgdorf

Jungfraustrasse 23/25, Burgdorf BE, Switzerland
Visualització © KNTXT Architektur GmbH

offener Wettbewerb | 1. Preis | Leistungsphasen 21-32 (inkl. Generelles Baugesuch)

Das Gymnasium liegt prominent auf dem Hügelrücken des Gsteigs und bildet zusammen mit der Fachhochschule, der Kirche sowie dem Schloss eine Gruppe von repräsentativen Bauten. Das 1904 errichtete, imposante Hauptgebäude, die elegante Turnhalle aus den 30er- sowie das Ergänzungsgebäude aus den 50er-Jahren bilden die Schulanlage. Als Zentrum dient die Spielwiese, welche durch ihre Grösse und Einfassung mit mächtigen Bäumen den Charakter eines Volksparks erhält.
Das Projekt sieht den Ersatz des bestehenden Ergänzungsbaus vor, der sich von der Spielwiese abwendet und somit der Campusidee im Wege steht. Der Hauptbau und die Turnhalle gliedern sich senkrecht um den Volkspark und fassen diesen ein. Der Neubau wird im gleichen Prinzip an die Wiese gesetzt. Die Eingänge richten sich ebenfalls in das Innere der Anlage. Dadurch gewinnt der zentrale Park an Bedeutung und wird zu einem verbindenden Erschliessungsraum.
Die neue Erweiterung versteht sich analog zur Turnhalle als Nebenbau zum Hauptgebäude. So übernimmt dieser die Traufe der Turnhalle wie auch das Motiv des Bandfensters und des niedrigen Sockels. Durch seine Holzfassade hebt sich der Neubau in der Materialisierung vom Kontext ab. Die grosszügigen, rhythmisierten Fenster und die durchlaufenden Vordächer verleihen dem Gebäude den Ausdruck eines filigranen und leichten Pavillons im Park.
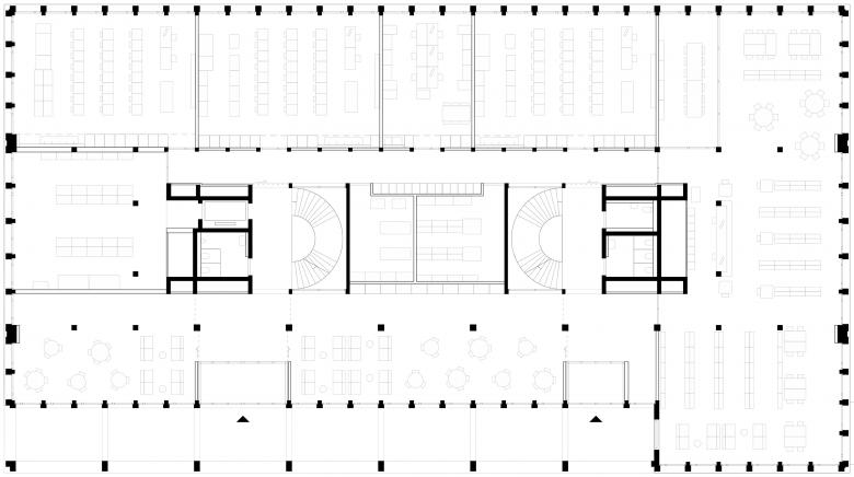
Ein gedeckter Aussenbereich führt zu den Eingängen in das Foyer. Die Mediathek wird zur ruhigen Seite orientiert. Sie erstreckt sich über die gesamte Gebäudetiefe und aktiviert so auch den Eingang mit dem Foyer. In den beiden Obergeschossen befinden sich die Unterrichtsräume, erschlossen durch skulpturale Treppen und einem Rundgang mit Aufenthaltsbereiche entlang der Stirnfassaden.

Das Projekt wird aufgrund eines sparpolitischen Entscheids nicht ausgeführt.

Fotografia © KNTXT Architektur GmbH
Dibuix © KNTXT Architektur GmbH
Dibuix © KNTXT Architektur GmbH
Dibuix © KNTXT Architektur GmbH
Visualització © KNTXT Architektur GmbH
Visualització © KNTXT Architektur GmbH
Visualització © KNTXT Architektur GmbH
Visualització © KNTXT Architektur GmbH
Visualització © KNTXT Architektur GmbH
Architects
KNTXT Architektur
Any
2024
Estat del projecte
Disseny

Projectes relacionats 

  • Moos
    playze
  • Reiters Reserve Premium Suiten
    BEHF Architects
  • Erweiterung und Instandsetzung Hallenbad Altstetten
    MIYO Visualisierung
  • Neubau von fünf Einfamilienhäusern
    Bäumlin+John AG
  • The Forge in der 105 Sumner Street in London
    Kiefer Klimatechnik GmbH

Revista 

Altres projectes per KNTXT Architektur 

Wohnhaus Sonnenfalter
Baden AG, Switzerland
Strassenverkehrs- und Schifffahrtsamt Kanton Bern
Münchenbuchsee BE, Switzerland
Schule Langwiesen
Winterthur ZH
Schule Triemli / In der Ey
Zürich
Schulhaus Bethlehemacker
Bern