Haus Freudenberg

Oberuzwil, Switzerland
Fotografia © Thomas Stöckli

Die eine Hälfte des Doppeleinfamilienhauses, erbaut um 1920, erhielt eine Erweiterung mit einem weiteren Wohnraum und einer grosszügigen Terrasse. Der Entwurf spannt einen weitläufigen Terrassenraum zwischen dem Altbau und dem zweiten Wohnzimmer in einem Nebenbau am anderen Ende des Gartens auf. Ein grosses Dach verbindet die zwei Gebäudeteile und bildet eine geschützte Terrassenfläche. Wie ein Teehaus mit Laube ordnet sich die Addition dem Hauptbau unter. Die langgezogene Hauserweiterung bildet einen Rücken zur Zufahrtstrasse. Garten, Wohnräume und Küche verbinden sich über den Terrassenraum zu einer Innen-Aussen Raumfolge in Enfilade.
In den Obergeschossen wurden die Badezimmer erneuert.

Fotografia © Thomas Stöckli
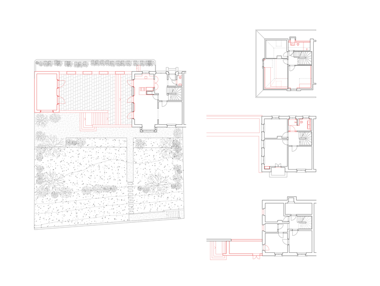
Grundgrisse
Axonometrie Alt + Neu
Fotografia © Thomas Stöckli
Fotografia © Thomas Stöckli
Fotografia © Thomas Stöckli
Architects
JOM Architekten
Any
2018
Estat del projecte
Construït

Projectes relacionats 

  • Moos
    playze
  • Reiters Reserve Premium Suiten
    BEHF Architects
  • Erweiterung und Instandsetzung Hallenbad Altstetten
    MIYO Visualisierung
  • Neubau von fünf Einfamilienhäusern
    Bäumlin+John AG
  • The Forge in der 105 Sumner Street in London
    Kiefer Klimatechnik GmbH

Revista 

Altres projectes per JOM Architekten 

Pförtnerhaus Künstlervilla
Luzern, Switzerland
Am Oeliweiher
Gossau ZH, Switzerland
Umbau Jugendstilhaus Villa Seeblick
St. Gallen, Switzerland
Im Wydler
Linkes Zürichseeufer, Switzerland
Mehrgenerationen-Haus im Morgen
Wetzikon ZH, Switzerland