Haus in Niederems
Waldems, Germany
Video © Börries Götsch | Architektur
Zimmer mit Ausblick!
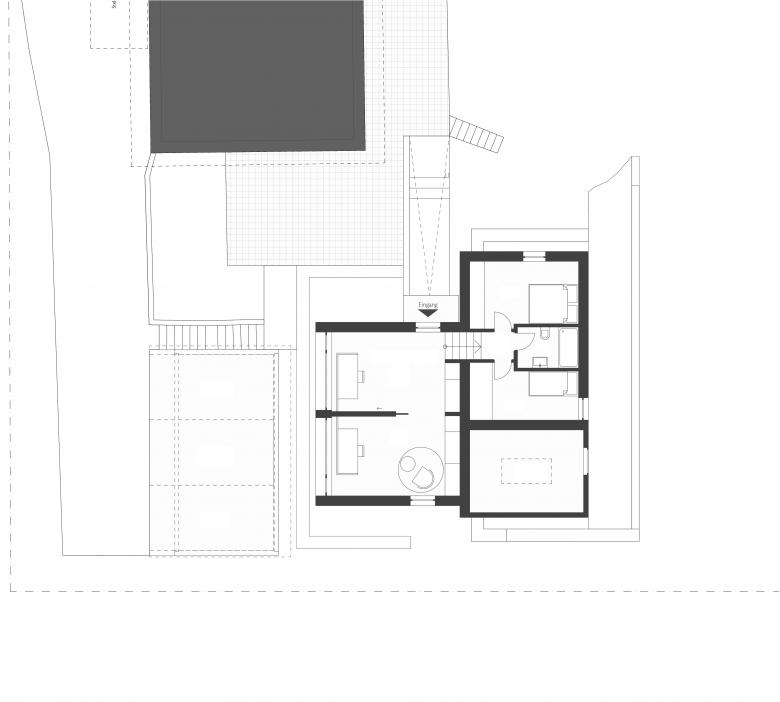
Ein 'Gartenhaus' als Homeoffice, mit 2 Gästezimmern auf 60 m2.
Freistehend, neben dem Wohnhaus, treppt sich der Baukörper den Hang hinunter.
Ganz ohne Beton gebaut! Gegründet auf Schraubfundamenten und ohne Zementestrich, so wird der CO2-Fußabdruck minimiert.
Gebaut aus Holz und mit konsequentem Einsatz von natürlichen Materialien im Innenraum.
PV-Anlage auf dem Dach, konsequente Regenwassernutzung und LWWP.
/ "Gartenhaus" als Homeoffice mit Gästezimmern
/ ca. 60 m²
/ Holzständerbauweise auf Schraubfundamenten
/ fertiggestellt
- Architects
- Börries Götsch | Architektur BDA
- Any
- 2022
- Estat del projecte
- Construït
- Client
- privat

















