Haus WID
Köln, Germany
Das Baugrundstück befindet sich in der Neubausiedlung Köln-Widdersdorf. Planungsziel ist der Entwurf eines großen Einfamilienhauses, das den Bauherren als Altersruhesitz dienen, zunächst aber vermietet werden soll. Um den unterschiedlichen Ansprüchen der Nutzer zu entsprechen, wird eine flexible Grundrissorganisation entwickelt.
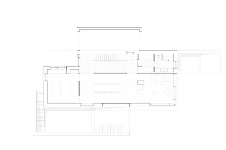
Die innere Gliederung der Räume reagiert entsprechend darauf: Im Erdgeschoss gibt es eine große Wohnfläche mit offener Küche, die sich zum Garten nach Südosten mit großzügigen Verglasungen öffnen lässt. Das Obergeschoss bietet die Möglichkeit, verschiedene Raumaufteilungen zu realisieren, damit die Vermietbarkeit zum Beispiel an Familien mit Kindern gegeben ist.
Die Fassade geht entsprechend auf die innere Flexibilität ein: die Öffnungen sind gestalterisch zu horizontalen Bändern zusammengefasst. Ein Wechsel aus geschlossenen und transparenten Fassadenflächen reagiert auf die unterschiedlichen Nutzungsanforderungen. Die Fensterbänder werden durch eine tiefe Lamelle plastisch gegliedert, die zugleich auch Sichtschutz und Verschattungsfunktion übernimmt. Um Arbeiten und Wohnen im gleichen Haus zu ermöglichen, wird das Untergeschoss nutzbar gemacht und durch Patios belichtet und erschlossen. Die Fassaden des rechteckigen, gestreckten Wohnhauses werden mit einem dunkelgrauen Vormauerziegel verkleidet. Die Fenster werden von unterschiedlich dimensionierten Betonelementen gerahmt. Ein horizontaler Versatz zwischen dem Erd- und Obergeschoss sowie ein horizontaler Fensterriegel unterstreichen die Gebäudegeometrie.
- Architects
- NGA | Nehse & Gerstein Architekten BDA
- Any
- 2016
- Estat del projecte
- Construït
- Client
- privat












