Hochschulstadtteil Lübeck
Lübeck, Germany
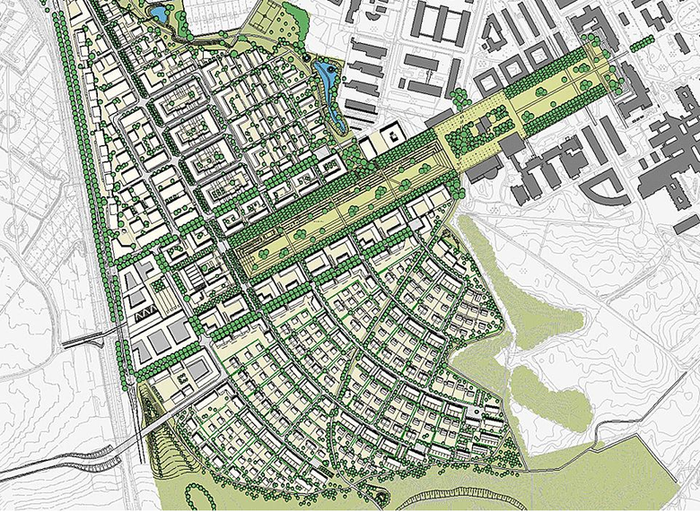
Städtebaulicher Rahmenplan, Städtebau – Der bestehende Hochschulbereich im Süden Lübecks soll zu einem Stadtteil von ca. 230 ha Größe für ca. 5000-6000 Einwohner ergänzt werden, in dem innovative Forschungs-, Studien- und Arbeitsmöglichkeiten in enger Verbindung mit unterschiedlichen Wohnformen sowie den notwendigen Infrastruktureinrichtungen entwickelt werden. Den Mittelpunkt des neuen Stadtteils bildet der zentrale Stadtteilpark, der Studieren, Arbeiten, Wohnen, Versorgen sowie Freizeit- und Kultureinrichtungen miteinander vernetzt. Während im Norden eine verdichtete, gemischte städtische Struktur vorgesehen ist, entsteht im Süden, zum Landschaftsraum ausgerichtet, eine lockere durchgrünte Siedlungsstruktur. Ziel der Planung ist es, einen zukunftsfähigen, nachhaltigen und urbanen Stadtteil besonderer Identität zu schaffen.
Freiräume – Der Stadtteilpark – der „Carlebachpark“ ist das ideelle und reale Zentrum des Hochschulstadtteils. Er ist Verknüpfungselement zwischen den angrenzenden Infrastruktureinrichtungen im Westen, der Parkrandbebauung im Norden und Süden sowie zu der bestehenden Hochschullandschaft im Osten. Er dient vor allem der Erholung der BewohnerInnen des neuen Stadtteils aber auch den Studierenden und Beschäftigten der vorhandenen Kliniken, der Fachhochschule sowie der Universität.
Der Stadteilpark wird über zahlreiche begrünte Wegeverbindungen durch die Wohnstraßen bis in die freie Landschaft angebunden.
Planung
2000-2003
Auftraggeber
HEG Lübeck | Hansestadt Lübeck
Architekten
petersen pörksen partner architekten + stadtplaner | bda
Mitarbeiter: A.Hausser, D.Grondke
Fachplaner
LA: Trüper Gondesen Partner, Lübeck
Verkehr: Masuch + Olbrisch, Hamburg
Wasserwirtschaft: IWTH, Hannover
Solartechnik: KAplus Ing.-Büro Vollert, Eckernförde
Kenndaten
Größe: 230 ha | 86 ha Neubauflächen
Leistungen: Städtebaulicher Entwurf, Testentwürfe für Einzelbereiche, Planungskoordination, Beratungen, Beteiligungsverfahren, B-Pläne
- Architects
- ppp architekten + stadtplaner
- Any
- 2003
- Estat del projecte
- En construcció








