House P
Sesto, Italy
Turning the corner
Nestled within a row of 1970s townhouses that, over the years, have developed a heterogeneous character due to various infill interventions, the corner house is being extended with an additional dwelling unit. Through the renovation, the existing single-family house is transformed into a multi-family residence.
Located at the eastern corner, the building takes advantage of its prominent position, opening towards the view with a distinctive gesture. A new identity emerges, one that integrates seamlessly into the established context while introducing new qualities for living.
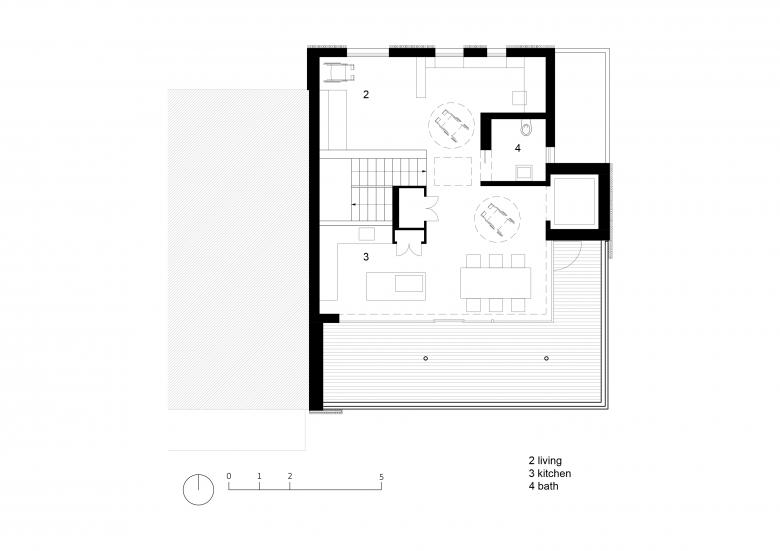
The spatial organization responds sensitively to the client’s needs, who is mobility-impaired following an accident. Accessibility is not treated as a limitation but as an integral design element: doors open optimally, all spaces flow freely without obstacles, and a laterally positioned lift ensures uncompromised movement between floors. The first floor of the extension houses the bedrooms, while above, the living and dining areas open up with an open-plan layout, generous ceiling height, and a maximally transparent façade facing southeast.
A vertical timber slat façade creates a smooth transition between old and new. Balconies are equipped with steel railings that act as a transparent structure, merging seamlessly with the sculptural external staircase.
Inside, the emphasis is on a continuous, flowing spatial experience. Timber is used throughout to create a warm atmosphere, enhancing the tactile quality of living. In the top floor, the raised roof is experienced as an element that opens up the space. A spacious terrace and large windows make the spectacular Dolomites panorama an integral part of the living experience.
- Architects
- Plasma Studio
- Any
- 2024
- Estat del projecte
- Construït
- Client
- Private
- Equip
- Ulrike Hell, Holger Kehne, Peter Pichler, Carolina Forer
- Structural project
- Ing. Andreas Erlacher
- Safety consultant
- Ing. Remo De Paola
- Main contractor
- Kargruber - Stoll Srl


















