Institute of Contemporary African Art & Film
Ilorin, Nigeria
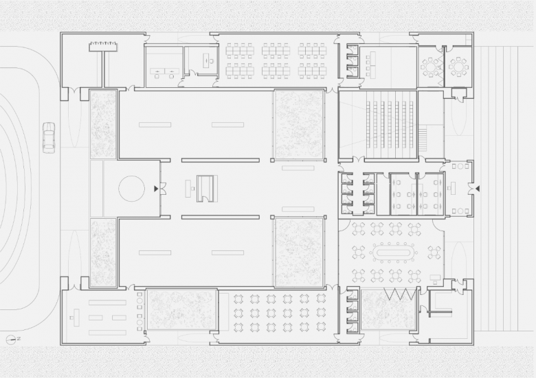
The Institute of Contemporary African Art & Film in Ilorin is to be a purpose-built art gallery capable of attracting the best in contemporary African art from around the continent. There will, in addition, be spaces for cinematic post-production, video art with editing and animation studios, a screening room as well as café, gift shop, co-working space and public landscaped gardens.
The formal language is a contemporary interpretation of the arched motifs of Islamic architecture, typical in this region (Central and Northern Nigeria). Elliptical, asymmetrical arches extend like wings and form shaded exterior porticoes. The arches are also inverted to create a dynamic roof profile which helps the passage of air across each space from high-level windows to lower-level courtyard glazing. The building is designed to operate passively when needed with natural light and ventilation throughout and every space having a view of the exterior landscape or interior courtyards which puncture the massing.
Resisting the notion of art gallery as an elite cultural object, we have sought to integrate the building into the life of the city by making it porous so as to and invite people in and create a locally relevant and viable institution.
The exhibition spaces of the Visual Arts Centre will offer visitors a seamlessly integrated experience of art, architecture and landscape, designed to encourage an unhurried, intimate engagement with art and the surrounding environment.
- Architects
- Studio Contra Ltd
- Any
- 2024
- Estat del projecte
- Construït
- Client
- Kwara State



















