James D. Eason Transplant Institute at Methodist University Hospital
James D. Eason Transplant Institute is the world’s leading institute in steroid-free liver transplantation that prolongs the lives of hundreds of patients from all walks of life around the globe. The Institute’s reputation, as well as Apple’s Steve Jobs’ liver transplant in 2009, attracted a major gift to realize a new, progressive environment creating a paradigm shift to think about this typology as forward-thinking.
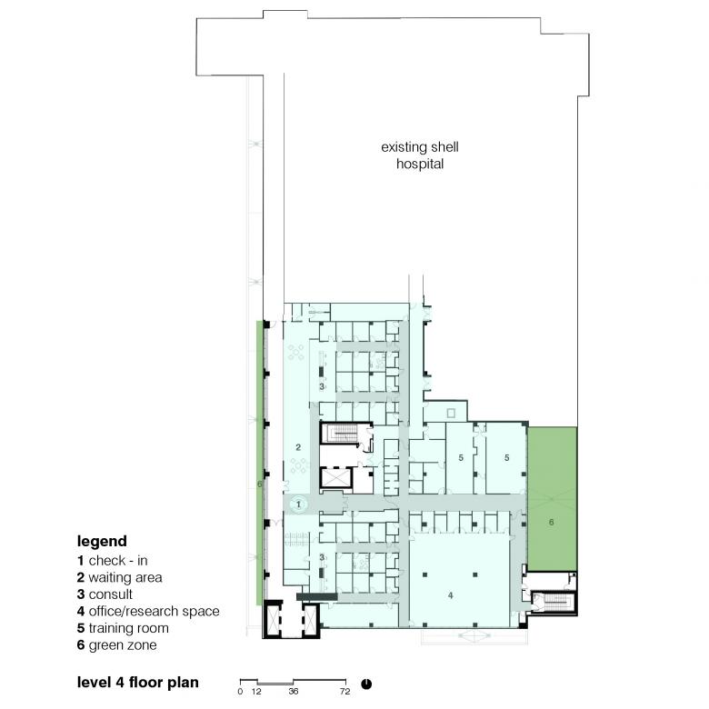
archimania led visioning workshops to better understand the Institute’s diverse needs of the patient, caregiver, healthcare provider, and support personnel. The design intends to enhance the delivery of care before, during, and after a transplant. The team worked to create a more humanized and progressive patient care experience that maximizes the use of actual and perceived natural daylight to expedite healing while decreasing perceived wait times. Through the placement of glass layering, nearly 100% of the occupiable space has views to the outside or to daylight, which is unusual in a healthcare environment.
- Architects
- archimania
- Any
- 2019
- Estat del projecte
- Construït
- Client
- Methodist Le Bonheur Healthcare
- Equip
- Bernhard TME, Allen & Hoshall, Kersey/Wike & Associates, Turner Construction Company
Projectes relacionats
Revista
-
-
Bâtiment de la semaine
The Three-Body Problem: Trapped in a Wave Sandwich
Eduard Kögel, Scenic Architecture Office | 13.04.2026 -

















