Kindergarten – Ersatzneubau Vestibül
Unterdorf, Unterstammheim, Switzerland
AUSGANGSLAGE
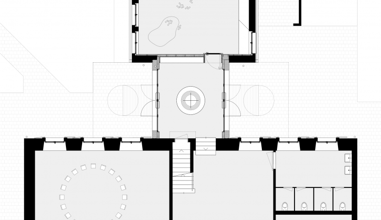
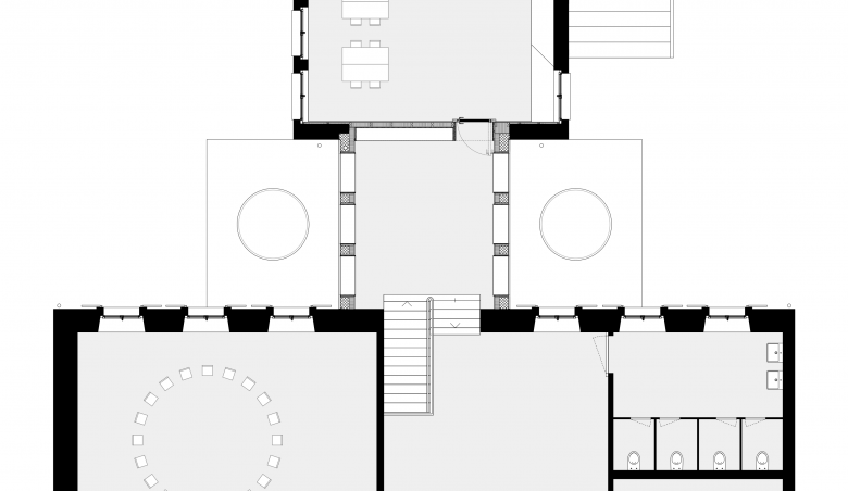
Das in die Jahre gekommene Vestibül genügte den heutigen Bedürfnissen des Kindergartens nicht mehr, deshalb entschied sich die Bauherrschaft für einen Neubau. Die Rolle des Baus als Hauptzugang und Drehscheibe für verschiedene Raumbeziehungen sollte gestärkt werden. Der Durchgang vom Haupteingang zum Garten ist ebenso von Bedeutung wie die Verbindung zwischen dem historischen Kindergarten und dem Erweiterungsbau aus den 1980er Jahren.
KONZEPT
Um die räumlichen Beziehungen erlebbar zu machen, wird das Erdgeschoss weitgehend offen gestaltet. So wird die Verbindung zwischen den beiden Schulbauten und der Durchgang von der Seite des Eingangs zum Garten gewährleistet. Das Obergeschoss wird als Passerelle geschlossener gehalten und gewährt Ausblicke auf die Umgebung. Sämtliche Masse der Möbel sowie die Höhe der Fensteröffnungen sind auf die Grösse der Kinder abgestimmt. Die unkonventionellen Fensteröffnungen sind eine Anlehnung an die (kindliche) Verspieltheit und an die Gabe, die Welt mit magischen Augen zu sehen. Zudem verleihen die Fensteröffnungen dem Verbindungstrakt eine formale Eigenständigkeit. Er soll als neutraler Vermittler zwischen den unterschiedlichen Zeiten stehen, in welchen der historische Kindergarten und die Erweiterung entstanden sind.
- Architects
- Orso Studio
- Any
- 2018
- Estat del projecte
- Construït
- Client
- Schulgemeinde Stammertal
- Auftragnehmer der Bauherrschaft - Orso Studio; Entwurf bis und mit Ausführungsplanung
- me. architektur ag
Projectes relacionats
Revista
-
Bâtiment de la semaine
The Three-Body Problem: Trapped in a Wave Sandwich
Eduard Kögel, Scenic Architecture Office | 13.04.2026 -
-












